EasyManua.ls Logo

Carrier 50FC Series - Configurable Switches and Analog sensors; General Operation; Demand Determination; Thermostat Demand

Carrier 50FC Series
98 pages
To Next Page IconTo Next Page
To Next Page IconTo Next Page
To Previous Page IconTo Previous Page
To Previous Page IconTo Previous Page
Loading...

Analog inputs
 
 
 
 
Digital inputs
 

󰀨

 
 
 
Digital outputs
 
       

 

 
          


Analog output
     

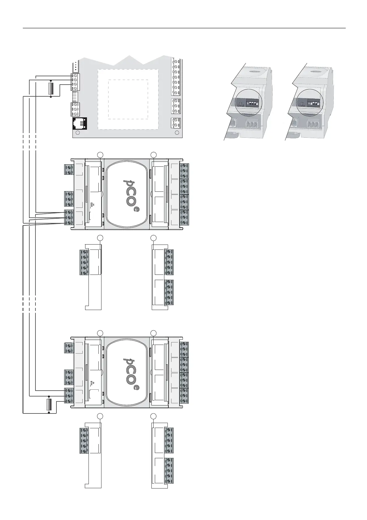
pCOe card with address 8
1
ON
2 3
4
Address 8
3.4. Connection of pCOe expansion cards to the control board (optional)
3 - CONNECTIONS
NO1
C1
NC1
NO2
C2
NC2
NO3
C3
NC3
NO4
C4
NC4
sin uso
1 2 4 8
ID1
ID2
ID3
ID4
IDC1
B1
B2
GND
+5V Ref
+Vdc
B3
B4
GND
+5V Ref
+Vdc
J5
J9
J4
address
series
J10
J6
J7
J8
J1
G
G0
RS485
T+
GND
J3
T–
J2
GND
Y1
1
2
RS485 expansion card
Power supply
+48Vcc or 24Vca
B1
B2
GND
+5V Ref
+Vdc
B3
B4
GND
+5V Ref
+Vdc
J9
J10
1
common
unused
unused
ID1
ID2
ID3
ID4
IDC1
J4
2
Prop. humidier or
fresh air damper
inlet temperature probe of HWC
outlet temperature probe of HWC
disconnection of 4 compr. st
disconnection of elec. heaters
disconnection of 1 compr. st
disconnection of 2 compr. st
Tx-
GND
Tx+
J10
“50FC”
NO1
C1
NC1
NO2
C2
NC2
NO3
C3
NC3
NO4
C4
NC4
sin uso
1 2 4 8
ID1
ID2
ID3
ID4
IDC1
B1
B2
GND
+5V Ref
+Vdc
B3
B4
GND
+5V Ref
+Vdc
J5
J9
J4
address
series
J10
J6
J7
J8
J1
G
G0
RS485
T+
GND
J3
T–
J2
GND
Y1
3
4
RS485 expansion card
Power supply
+48Vcc or 24Vca
B1
B2
GND
+5V Ref
+Vdc
B3
B4
GND
+5V Ref
+Vdc
J9
J10
3
common
air quality probe, zone 2
ID1
ID2
ID3
ID4
IDC1
J4
4
extraction temperature probe
(prop. rotary heat exchanger)
recovery temperature probe
(prop. rotary heat exchanger)
0...10Vdc signal
wheel control
(prop. heat recov.)
120
Address 8
Address 9
Tx-
GND
Tx+
120
electrical protection
of outdoor dampers
configurable output
HWC antifreeze prot.
or configurable output
supplementary
crankcase heater
common
common
common
common
opening status of zone 1 return damper
opening status of zone 2 return damper
opening status of zone 1 supply damper
opening status of zone 2 supply damper
common
opening signal of zone
1 return damper
opening signal of zone
2 return damper
common
common
common
opening signal of zone
1 supply damper
opening signal of zone
2 supply damper
pCOe card with address 9
Analog inputs
 

 
 
 
Digital inputs
  

 
          

 
Digital outputs
 

 
        

 
Analog output
      

1
ON
2 3
4
Address 9

Table of Contents

Other manuals for Carrier 50FC Series

Related product manuals