EasyManua.ls Logo

Carrier 58TP0A - Page 14

Carrier 58TP0A
56 pages
Print Icon
To Next Page IconTo Next Page
To Next Page IconTo Next Page
To Previous Page IconTo Previous Page
To Previous Page IconTo Previous Page
Loading...
14
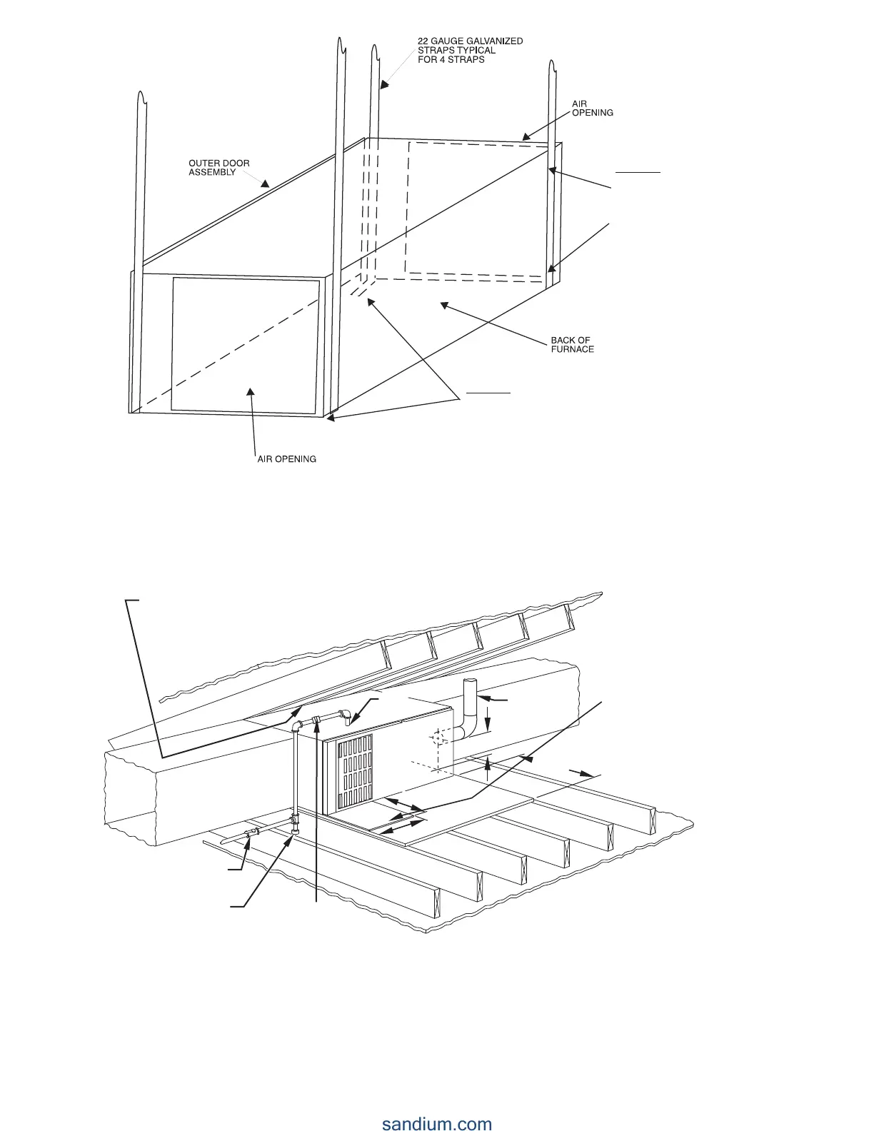
METHOD 2
USE (4) #8 x 3/4 (19 mm) SHEET
METAL SCREWS FOR EACH
STRAP. THE STRAPS
SHOULD BE VERTICAL
AGAINST THE FURNACE
SIDES AND NOT PULL AWAY
FROM THE FURNACE
SIDES.
METHOD 1
FOLD ALL STRAPS UNDER
FURNACE AND SECURE WTH
(4) #8 x 3/4 (19 mm) SHEET METAL SCREWS
(2 SCREWS IN SIDE AND 2 SCREWS
IN BOTTOM).
A10131
Fig. 16 -- Horizontal Suspension with Straps
30-IN . (762mm)
MIN WORK AREA
6
M IN
*
TYPE-B
VENT
17
3
/
4
22
SHEET
MET AL
SEDIMENT
TRAP
EQUIPMENT MANU AL
SHUT -OFF GAS VA LV E
LINE CONT A CT ONL Y PERMISSIBLE BETWEEN
LINES FORMED BY INTERSECTIONS OF
THE T OP AND TW O SIDES OF THE FURNA CE
JA CKET AND BUILDING JOISTS ,
STUDS , OR FRAMING.
GAS
ENTR Y
17
3
/
4
(451mm)
OVERALL
4
3
/
4
(121mm)
UNDER DOOR
1
(25mm)
UNDER FURNACE
EXTEND OUT 12
(305mm)
FR OM FA CE OF DOOR
* WHEN USED W ITH
SINGLE W ALL VEN T
CONNECTIONS
UNION
(152mm)
(451mm)
(559mm)
A10164
Fig. 17 -- Typical Attic Installation
sandium.com

Related product manuals