EasyManua.ls Logo

Carrier 58TP1A - Page 2

Carrier 58TP1A
48 pages
Print Icon
To Next Page IconTo Next Page
To Next Page IconTo Next Page
To Previous Page IconTo Previous Page
To Previous Page IconTo Previous Page
Loading...
58TP0A/58TP1A: Installation, Start-up, Operating and Service and Maintenance Instructions
Manufacturer reserves the right to change, at any time, specifications and designs without notice and without obligations.
2
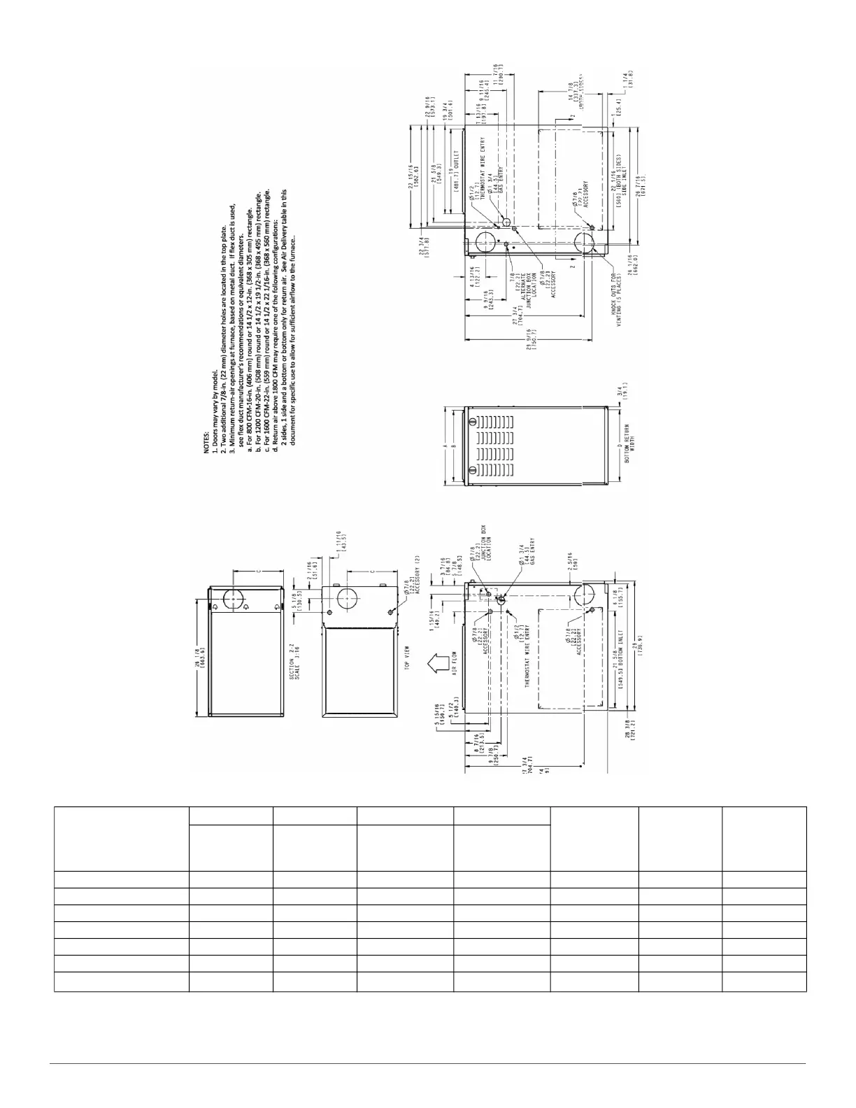
A190045
Fig. 1 – Dimensional Drawing
FURNACE SIZE
A B C D
VENT
CONNECTION
SIZE
SHIP WT.
LB (KG)
ACCESSORY
FILTER
MEDIA
CABINET SIZE
CABINET
WIDTH
OUTLET
WIDTH
TOP AND
BOTTOM FLUE
COLLAR
BOTTOM
INLET WIDTH
045V14-12 14-3/16 (360) 12-9/16 (319) 9-5/16 (237) 12-11/16 (322) 4 (102) 111 (50) 16 (406)
070V14-12 14-3/16 (360) 12-9/16 (319) 9-5/16 (237) 12-11/16 (322) 4 (102) 118 (54) 16 (406)
070V17-16 17-1/2 (445) 15-7/8 (403) 11-9/16 (294) 16 (406) 4 (102) 132 (60) 16 (406)
090V17-16 17-1/2 (445) 15-7/8 (403) 11-9/16 (294) 16 (406) 4 (102) 131 (59) 16 (406)
090V21-20 21 (533) 19-3/8 (492) 13-5/16 (338) 19-1/2 (495) 4 (102) 142 (64) 20 (506)
110V21-22 21 (533) 19-3/8 (492) 13-5/16 (338) 19-1/2 (495) 4 (102) 154 (70) 20 (506)
135V24-22 24-1/2 (622) 22-7/8 (581 15-1/16 (383) 23 (584)
4 (102)
*
*. 135 size furnaces require a 5 or 6-in. (127 or 152 mm) vent. Use a vent adapter between furnace and vent stack. See Installation Instructions for complete
installation requirements.
168 (76) 24 (610)
U.S. ECCN: Not Subject to Regulation (N.S.R.)
SD5523-4 REV. B
NOTE: ALL DIMENSIONS IN INCH (MM)

Related product manuals