EasyManua.ls Logo

Carrier 59SP2A - Page 38

Carrier 59SP2A
86 pages
Print Icon
To Next Page IconTo Next Page
To Next Page IconTo Next Page
To Previous Page IconTo Previous Page
To Previous Page IconTo Previous Page
Loading...
38
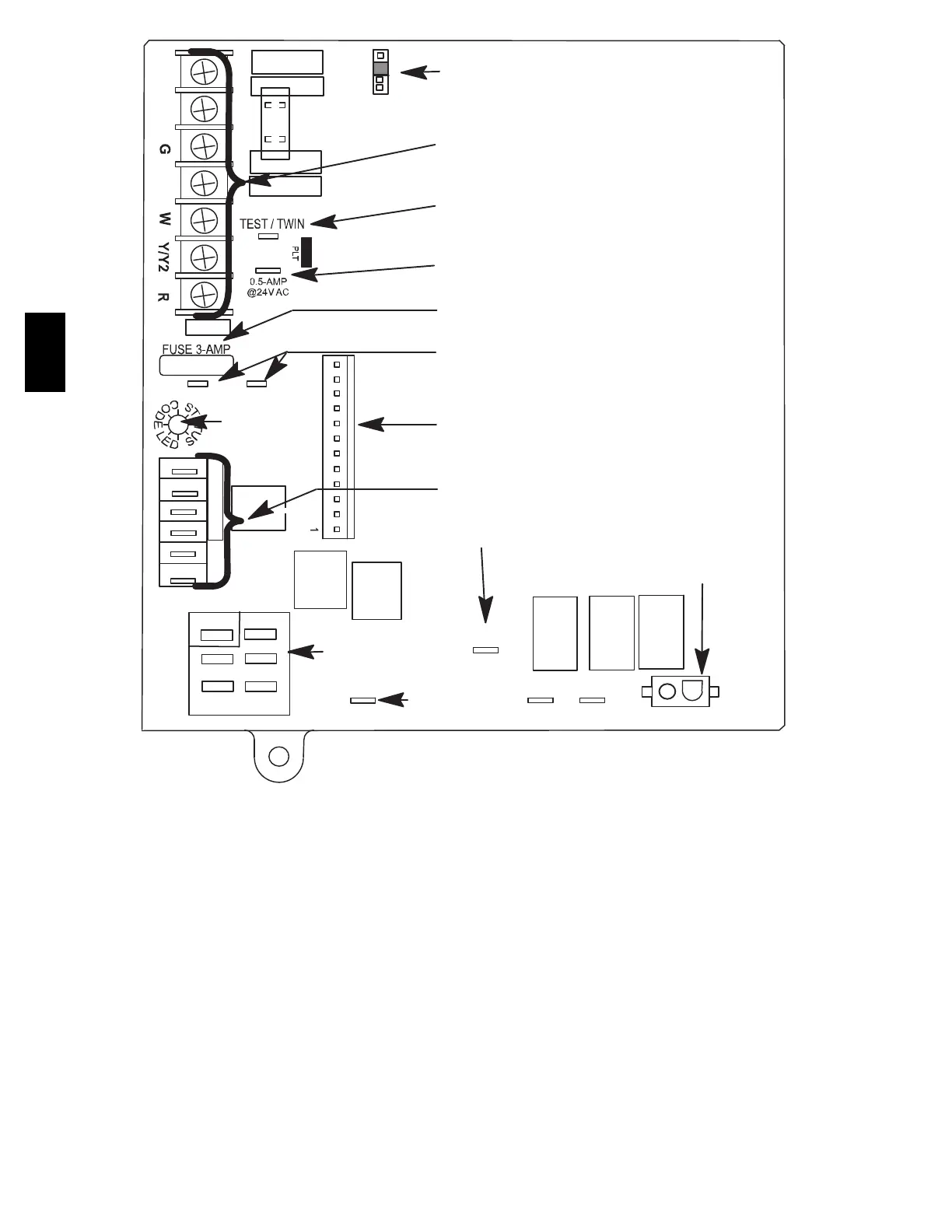
TWINNING AND/OR
COMPONENT TEST
TERMINAL
PL1 LOW VOLTAGE MAIN
HARNESS CONNECTOR
TRANSFORMER 24VAC
CONNECTIONS
EAC TERMINAL
(115 VAC 1.0 AMP MAX.)
SEC-2
115−VAC (L2)
NEUTRAL
CONNECTIONS
24−V THERMOSTAT
TERMINALS
HUMIDIFIER TERMINAL
(24−VAC 0.5 AMP MAX)
3−AMP FUSE
LED
OPERATION &
DIAGNOSTIC
LIGHT
SEC-1
BLOWER SPEED
SELECTION TERMINALS
BL−1
PR-1
COM
HEAT
COOL
FAN
SPARE2
SPARE1
Y1
DHUM
BLOWER OFF-DELAY
120 180
90 150
24V MTR TAPS
115 VAC (L1)
INPUT
L1
IND
PL-2 HOT SURFACE
IGNITOR (HSI) &
INDUCER MOTOR
(IND) CONNECTOR
HUM
EAC-1
HSI
PL-2
PL1
EAC-2
Com
24V
L2
A11391
Fig. 38 -- Example of Single Stage Furnace Control
59SP2A

Other manuals for Carrier 59SP2A

Related product manuals