EasyManua.ls Logo

Carrier AquaForce B Series - Page 235

Carrier AquaForce B Series
358 pages
To Next Page IconTo Next Page
To Next Page IconTo Next Page
To Previous Page IconTo Previous Page
To Previous Page IconTo Previous Page
Loading...
235
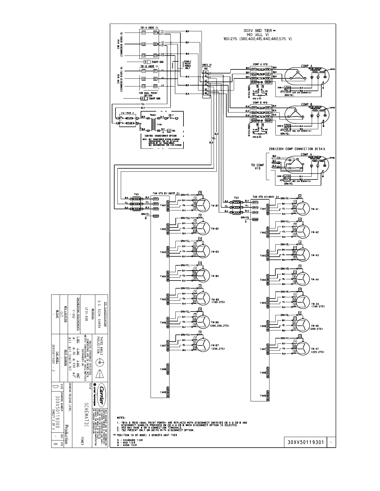
Fig. 95 — 30XV Mid Tier 140 (All Voltages),160-275 (380/400/415/440/460/575v) Power Schematic
NOTE: See Legend on page 226.

Table of Contents

Related product manuals