EasyManua.ls Logo

Carrier AquaForce B Series - Page 236

Carrier AquaForce B Series
358 pages
To Next Page IconTo Next Page
To Next Page IconTo Next Page
To Previous Page IconTo Previous Page
To Previous Page IconTo Previous Page
Loading...
236
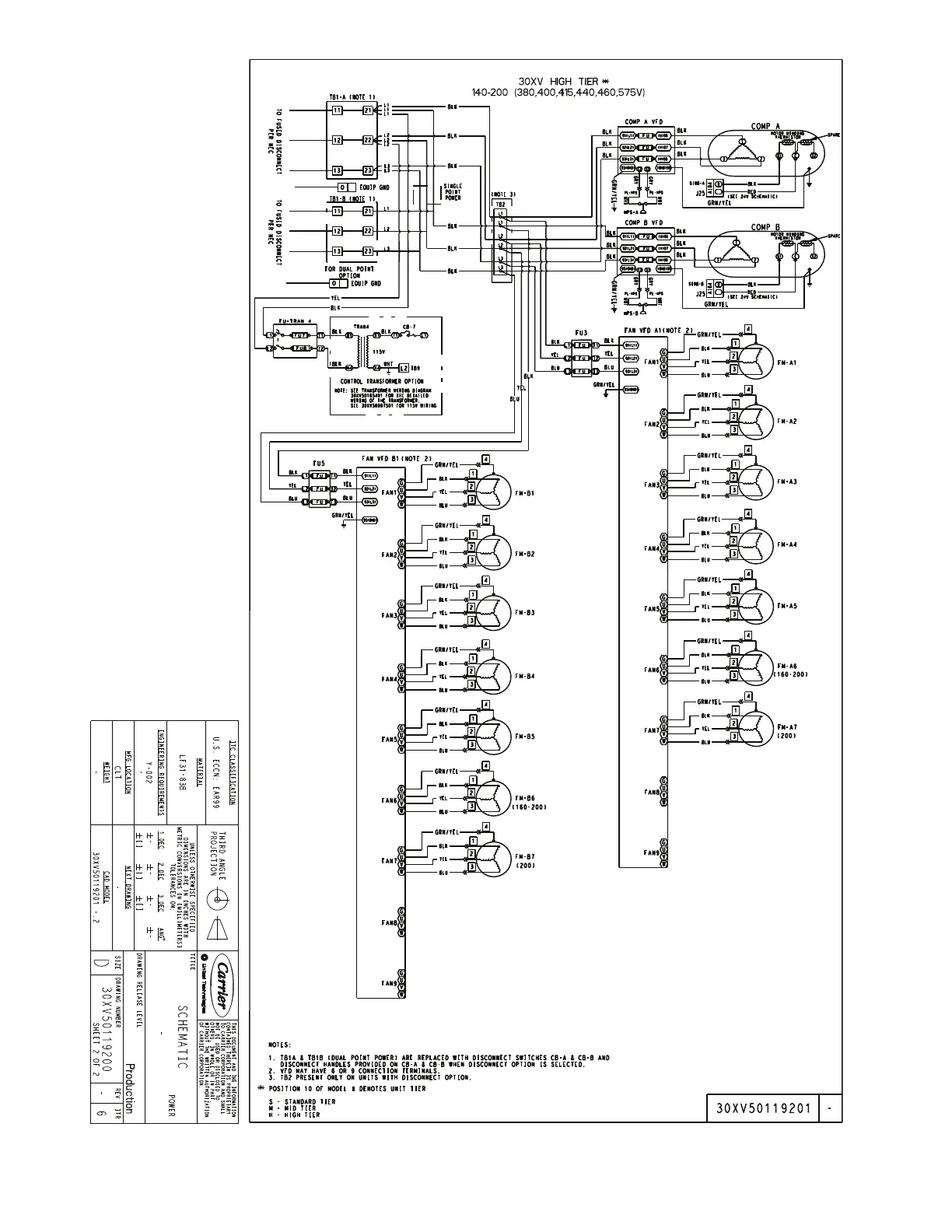
Fig. 96 — 30XV High Tier 140-200 (380/400/415/440/460/575v) Power Schematic
NOTE: See Legend on page 226.

Table of Contents

Related product manuals