EasyManua.ls Logo

Case CX490D - Dimension

Case CX490D
81 pages
Print Icon
To Next Page IconTo Next Page
To Next Page IconTo Next Page
To Previous Page IconTo Previous Page
To Previous Page IconTo Previous Page
Loading...
INTRODUCTION
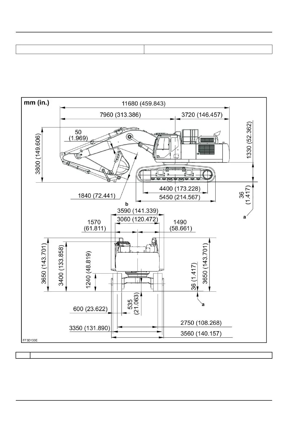
Dimension
CX500DCrawlerexcavatorsLCMassExcavatorversion(TIER4FINAL)
-EUMarket
WE
ShortArm[2.53m(8.30ft)]
NOTE:Thevaluesusedinthisdocumentaresubjecttochangewithoutnoticeduetoadesignchangeorotherrea-
sons.
NOTE:Thevaluesindicatedinthediagramincludetheshoelugheight(a)[36mm(1.417in)].
FF3D130E1
(b)Withcatwalk-option
4793781129/02/2016
64

Other manuals for Case CX490D

Related product manuals