EasyManua.ls Logo

Celsior 35 BF - Page 6

Celsior 35 BF
36 pages
Print Icon
To Next Page IconTo Next Page
To Next Page IconTo Next Page
To Previous Page IconTo Previous Page
To Previous Page IconTo Previous Page
Loading...
6
ENG
6
12
11
10
9
8
7
5
4
3
1
13
14
19
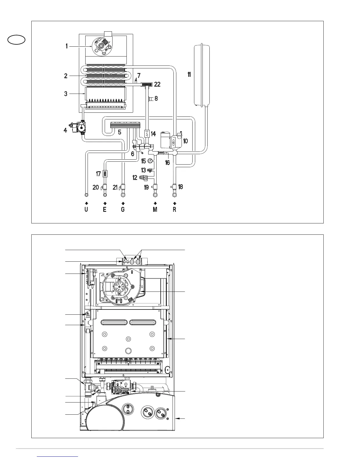
KEY
1 Fan
2 Main exchanger
3 Combustion chamber
4 Gas valve
5 D.H.W. plate exchanger
6 Divertor valve
7 C.H. sensor (SM)
8 100°C safety stat
10 Pump with automatic air vent
11 Expansion vessel
12 Safety valve
13 Boiler discharge
14 Water flow switch
15 Tridicator
16 Automatic by-pass
17 D.H.W. filter
18 C.H. return cock
19 C.H. flow cock
20 D.H.W. cock
21 Gas cock
22 Aqua Guard Filter System
Figure 3
KEY
1 Control panel
3 Combustion chamber
4 Fan
5 Combustion analysis intakes
6 Negative pressure intake
7 Positive pressure intake
8 Smoke pressure switch
9 C.H. sensor (SM)
10 Main exchanger
11
100°C safety stat
12 Gas valve
13 Flow water switch
14 Divertor valve
15 Aqua Guard Filter System
Figure 2