EasyManua.ls Logo

Celsior 35 BF - System Filling

Celsior 35 BF
36 pages
Print Icon
To Next Page IconTo Next Page
To Next Page IconTo Next Page
To Previous Page IconTo Previous Page
To Previous Page IconTo Previous Page
Loading...
8
ENG
pipe size of other materials. The sections of the
piping making up the system must be such as to
guarantee a supply of gas sufficient to cover the
maximum demand, limiting pressure loss betwe-
en the gas meter and any apparatus being used
to not greater than:
1. 1.2 mbar (0.5”W.C.) for supply pressures un-
der 17 mbar (7”W.C.);
2. 2.5 mbar (1.0”W.C.) for supply pressures
from 17 mbar (7”W.C.) to 35 mbar (14”W.C.).
Gas connestions must be made in accordance
with current standards and regulations. When
dimensioning gas pipes from the meter to the
boiler, both capacity volume (consumption) in
m
3
/hr (ft
3
/hr) and gas density must be taken
into account. The boiler and the boilers gas con-
nection must be leak tested before it is put in to
operation. The boiler and its individual shut-off
valve must be disconnected from the gas sup-
ply piping system during pressure testing of the
system at pressures in excess of 1/2
psi (3.5
kPa). The boiler must be isolated from the gas
supply piping system by closing its individual ma-
nual shut off valve during any pressure testing of
the supply piping system at test pressures equal
to or less than 1/2 psi (3.5 kPa). The boiler shall
be installed such that the gas ignition system
components are protected from water (dripping,
spraying, rain etc.) during boiler operation or ser-
vice (circulators or control replacement etc.). The
boiler and its gas connection must be leak tested
before placing the the boiler is put into operation.
Use a chloride-free soap and water solution (bub-
bles forming indicate a leak) or other approved
method. After placing the boiler in operation, the
ignition system safety shutoff device must be te-
sted.
To testing the system:
- Close the gas valve (gas cock)
- feed to boiler
- initiate a call for heat (see user instructions)
- verify red led “Ignition lock-out” light is on, after
ignition boiler.
- reset boiler by rotating the function knob to
chimney sweep and stay at least one second,
and after back to “winter” or “summer” posi-
tion.
- finally open the gas cock.
2.3.2 Filter on the gas pipe
The gas valve is supplied by the factory with an
inlet filter, which, however, is not adequate to
entrap all the impurities in the gas or in gas
main pipes.
To prevent malfunctioning of the valve, or in cer-
tain cases even to cut out the safety device with
which the valve is equipped, install an adequate
filter on the gas pipe. In any case, a sediment
trap must be installed upstream of the gas
controls.
2.4 SYSTEM FILLING
Filling of the boiler and the system is done by
installing a pressure reducing valve. The charge
C12
C32
C42
3
1
2
7
6
4
3
2
min 1,3 m - max 5 m
8
x
y
x
+ y = max 3,5 m "25"
x
+ y = max 3,0 m "30-35"
max 3,5 m "25"
max 3,0 m "30-35"
2
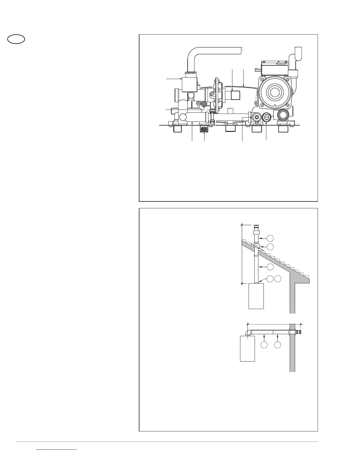
Figure 6
Figure 5
KEY
1 D.H.W. inlet/outlet manifold
3 D.H.W. filter
4 By-pass
5 Water rate adjuster
6 D.H.W. exchanger
7 Microswitches
8 Water flow switch
9 Boiler discharge
KEY
1 Coaxial flue kit L. 810 mm (32 inch) code 8084811
2 a Extension L. 1000 mm (39.4 inch) code 8096103
2 b Extension L. 500 mm (19.7 inch) code 8096102
3 Vertical extension L. 200 mm (7.9 inch) code 8086908
6 Articulated tile code 8091300
7 Roof outlet terminal L. 1284 mm (50.6 inch) code 8091200
8 Vertical condensation collector L. 200 mm (7.9 inch) cód. 8092803
IMPORTANT:
Each additional 90° curve (code
8095801) installed reduces the avai-
lable length by 0.90 metres (3 ft).
Each additional 45° curve installed
reduces the available length by 0.45
metres (1.5 ft).
– It is advisable to assemble the con-
densation collector (8) on vertical seg-
ments exceeding 2.5 metres (8.2 ft) in
length and to limit maximum length to
4 metres (13.1 ft).
maximum 13.1 ft
max 4.0 m
min 4.27 - max 16.4 ft
min 1,3 m - max 5 m
8
5
7
6
4
2
3
1
9