EasyManua.ls Logo

Certikin HPP040 - Esquema Eléctrico da BC

Certikin HPP040
143 pages
Print Icon
To Next Page IconTo Next Page
To Next Page IconTo Next Page
To Previous Page IconTo Previous Page
To Previous Page IconTo Previous Page
Loading...
portugués
BOMBA DE CALOR BLP / BLY
· Os cabos deverão ser instalados correctamente de maneira que não provoquem interferências (passagens nos passa-
fios).
· A bomba de calor foi desenvolvida para a sua ligação a uma alimentação gera com ligação à terra.
· Secção do cabo. Esta secção é indicativa e deveser verificada e adaptada conforme as necessidades
e condições de instalação.
· A tolerância de varião de tensão aceitável é de +/- 10% durante o funcionamento.
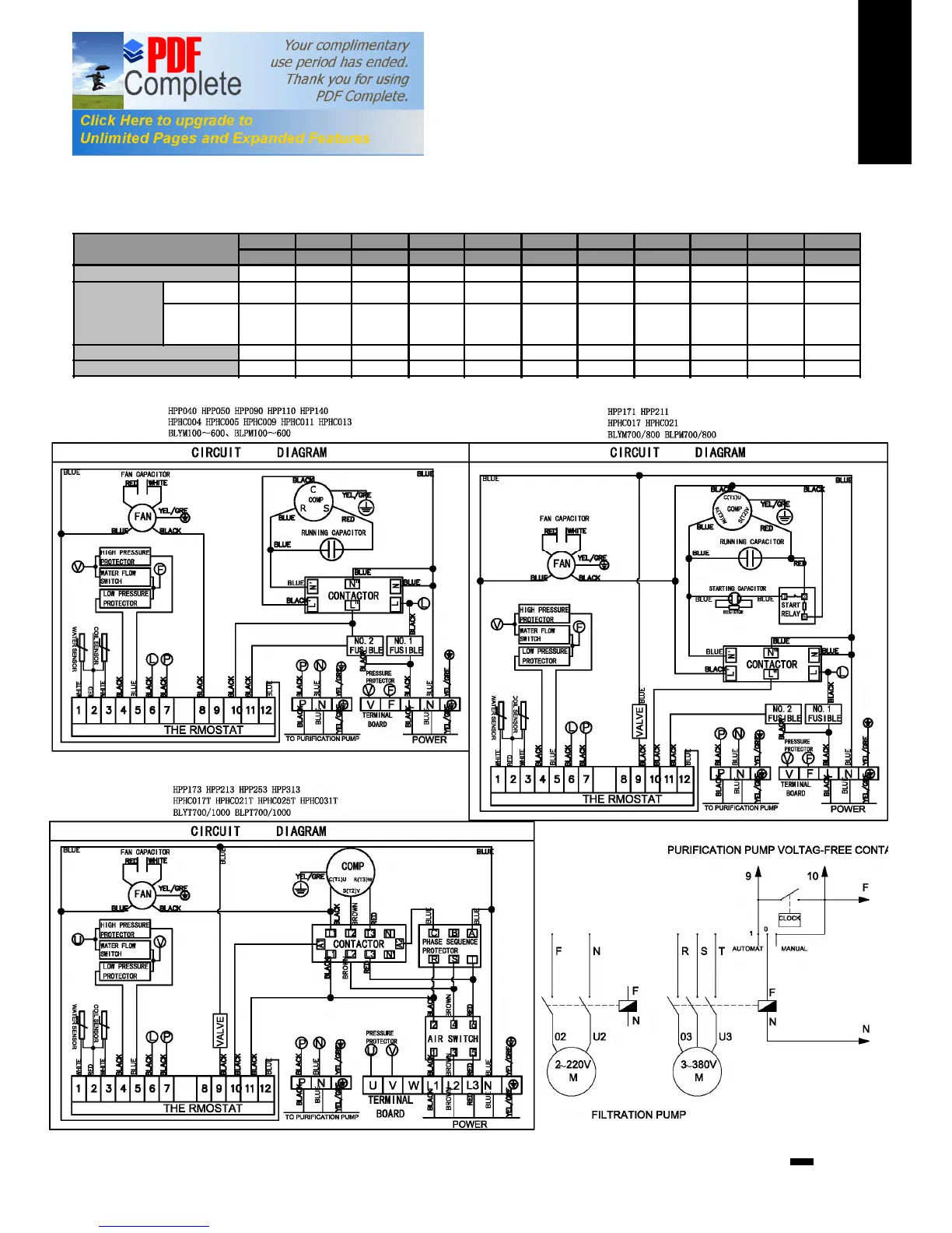
D. Esquema eléctrico da BC
123
MODELO
HPP040 HPP050 HPP090 HPP110 HPP140 HPP171 HPP173 HPP211 HPP213 HPP253 HPP313
HPHC004 HPHC005 HPHC009 HPHC011 HPHC013 HPHC017 HPHC017T HPHC021 HPHC021T HPHC025T HPHC031T
VOLTAGEM / FREQUÊNCIA (V/Ph/Hz) 230/1/50 230/1/50 230/1/50 230/1/50 230/1/50 230/1/50 380/3/50 230/1/50 380/3/50 380/3/50 380/3/50
DISPOSITIVO
DE
PROTECÇÃO
CONTRA
CURTO-
CIRCUITOS
INTENSIDADE
NOMINAL
2,5 A 3,8 A 8,3 A 9,2 A 12,0 A 16,0 A 6,0 A 21 A 7,8 A 9,6 A 10,2 A
LIMITE DE
CORRENTE
RESIDUAL
20mA 25mA 30mA 35mA 45 mA 60 mA 25 mA 100 mA 35 mA 40 mA 45 mA
CALIBRE DE FUSÍVEL 16 A 16 A 20 A 32 A 32 A 40 A 20 A 60 A 20 A 20 A 25 A
CALIBRE DE ALIMENTAÇÃO 3 x 1,0 3 x 1,0 3 x 2,5 3 x 2,5 3 x 2,5 3 x 4 5 x 2,5 3 x 4 5 x 2,5 5 x 2,5 5 x 2,5

Table of Contents

Related product manuals