EasyManua.ls Logo

Chamberlain 8500 - Introducción; Planificación; Seguridad

Chamberlain 8500
76 pages
Print Icon
To Next Page IconTo Next Page
To Next Page IconTo Next Page
To Previous Page IconTo Previous Page
To Previous Page IconTo Previous Page
Loading...
3
Planificación
Revise el área de su garaje para ver si alguna de las siguientes condiciones se aplica a
su instalación. Otros materiales podrían ser necesarios según las características de su
instalación particular.
ESTE ABRE-PUERTAS DE GARAJE ES COMPATIBLE CON:
Puertas con barra de torsión y resortes. La barra de torsión debe ser de 2.5 cm
(1pulgada) de diámetro.
Carretes de 10 cm a 15 cm (4 a 6 pulg.); no debe utilizarse con carretes cónicos de
más de 15 cm (6 pulg.).
Se pueden usar tambores de 3 a 3.9 pulgadas (7.6 cm a 9.9 cm) en puertas de hasta
430 lbs (195.4 kgs).
Puertas seccionadas de elevación alta (de hasta 137.2 cm (54 pulg.) de altura) y
estándar de hasta 4.3 m (14 pies) de altura.
Puertas de hasta 5.5 m (18 pies) de ancho.
Puertas de hasta 16.7 m cuadrados (180 pies).
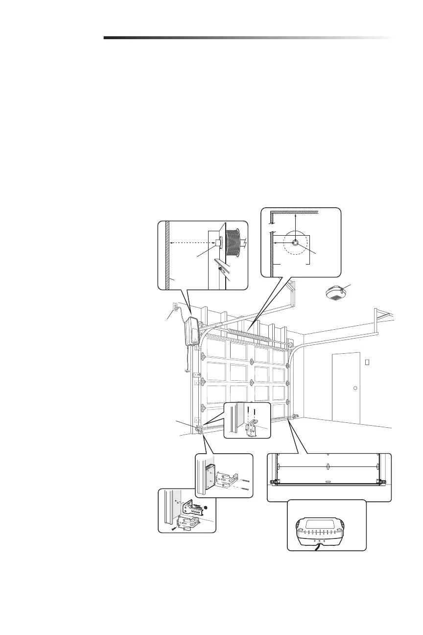
Revise o inspeccione el área de instalación
propuesta. El abre-puertas de garaje
puede instalarse a la izquierda o a la
derecha de la puerta. Seleccione el lado
que cumpla con los requisitos que se
detallan a continuación.
a. Debe haber, como mínimo, 6.4cm
(2-1/2 de pulg.) entre la pared del
garaje y el centro de la barra de
torsión.
b. Debe haber, como mínimo, 7.6cm
(3pulg.) entre el techo y el centro de
la barra de torsión.
c. Debe haber, como mínimo, 21.6cm
(8.5pulg.) entre la pared lateral del
garaje (o obstrucción) y el extremo de
la barra de torsión.
d. La barra de torsión debe extenderse,
por lo menos, de 3.81 cm (1.5 de
pulg.) de la cojinete. Esto puede variar
dependiendo de sus requisitos de la
instalación.
e. Se requiere una toma de corriente
eléctrica dentro de los 1.83m (6pies)
del área de instalación. Si no hay un
tomacorriente, póngase en contacto
con un electricista calificado o utilice
una alimentación eléctrica de bajo
voltaje (modelo 580LM).
f. Según la construcción del garaje, es
posible que se requieran extensiones
de soporte o bloques de madera para
instalar los sensores de reversa de
seguridad.
g. El montaje alternativo de los sensores
de reversa de seguridad en el suelo
requerirá piezas que no se incluyen.
h. Cualquier espacio entre el suelo
y la base de la puerta no debe
exceder 6mm (1/4 de pulg.).De lo
contrario, es posible que el sistema
de reversa de seguridad no funcionen
debidamente.
i. Se recomienda el uso de reserva
de batería modelo 475LM si no hay
puerta de acceso al garaje, ya que
este abre-puertas de garaje no puede
usarse junto con un mecanismo
externo de apertura de emergencia.
Introducción
NOTA: Inspeccione la barra de torsión
mientras la puerta suba y baje. Es
importante que no haya ningún movimiento
notorio hacia arriba ni abajo, ni hacia la
derecha ni la izquierda. La duración del
abre-puertas de garaje será mucho menor
si no se corrige el movimiento.
a
b
h
i
c
d
e
f
g
Barra de
torsión
6.4 cm
(2-1/2
de pulg.)
7.6 cm
(3 pulg)
Pared o
obstrucción
Barra de
torsión
21.6 cm
(8.5 pulg.)
Reserva de batería
475LM
Sensor de
seguridad
de reversa
Luz remota

Table of Contents

Related product manuals