EasyManua.ls Logo

Chamberlain 8500 - INSTALACIÓN Montar el Abre-Puertas de Garaje; Tornillo 14-10 X2 Pulg

Chamberlain 8500
76 pages
Print Icon
To Next Page IconTo Next Page
To Next Page IconTo Next Page
To Previous Page IconTo Previous Page
To Previous Page IconTo Previous Page
Loading...
8
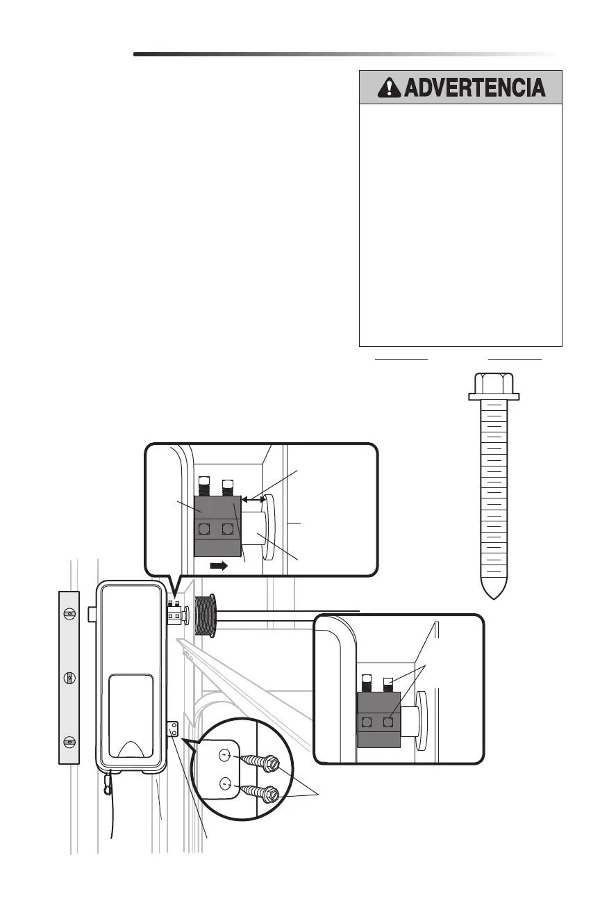
Placa de
soporte
Collar
Bara de torsión
.Espacio mínimo
de 6 mm
(0.25 pulg.) entre
la placa de apoyo
y el collar
Ménsula de montaje
Tornillos 14-10 x 2 pulg.
Tornillos de
fijación
(Barra de
torsión)
Instalación
PIEZAS
Montar el abre-puertas de garaje
1
Para evitar la posibilidad de una LESIÓN GRAVE
o INCLUSO LA MUERTE:
Se DEBEN usar anclas para concreto si se
monta el soporte en la mampostería.
NUNCA trate de aflojar, mover ni ajustar la
puerta del garaje, los resortes, los cables,
las poleas, los soportes ni sus piezas, pues
TODAS estas piezas están bajo una tensión
EXTREMA.
SIEMPRE llame a un técnico especializado
en sistemas de puertas si la puerta del garaje
se atora, se atasca o está desequilibrada. Es
posible que una puerta de garaje que no esté
equilibrada NO retroceda cuando se requiera.
El operador DEBE estar montado a un ángulo
correcto de la barra de torsión para evitar el
desgaste prematuro del collar.
El abre-puertas de garaje DEBE estar
montado a un ángulo adecuado para evitar el
desgaste prematuro del collar.
Tornillo
14-10x2 pulg. (2)
HERRAJES
NOTA: Para opciones de montaje adiciónales, vea la página de accesorios.
1. Cierre completamente la puerta del garaje.
2. Deslizar el abre-puertas de garaje hacia el extremo de la barra de torsión.
Si la barra fuera muy larga o estuviera dañada, podría ser necesario
cortarla.
Verificar que el aro NO haga contacto con la placa de soporte.
3.
Alinear el abre-puertas de garaje y nivelarlo verticalmente. Verificar que
la ménsula de montaje esté apoyada sobre una súperficie sólida tal como
madera, concreto o un soporte de puerta. Si está realizando la instalación
sobre tablaroca, la ménsula de montaje DEBE sujetarse a un montante.
4. Una vez que el abre-puertas de garaje quede alineado, marcar los agujeros
de fijación de la ménsula de montaje, Si fuera necesario ajustar los
tornillos del aro en la barra de torsión para mantener fijo el abre-puertas
de garaje mientras hacen los agujeros.
NOTA: El abre-puertas de garaje no debe quedar a ras de la pared.
5.
Desmontar el abre-puertas de garaje de la barra de torsión. Taladre
orificios de 3/16 de pulg. en los lugares marcados. Hacer los agujeros que
sean necesarios en la placa de acero.
6.
Volver a colocar el abre-puertas de garaje en la barra de torsión hasta que
los agujeros pilotos queden alineados con la ménsula.
7. Ajuste los 2 tornillos de fijación de cabeza cuadrada en la barra de
torsión. Si la barra de torsión es hueca, ajuste los tornillos de 3/4 a 1 giro
completo después de hacer contacto con la barra. Si la barra de torsión es
sólida, ajuste los tornillos de 1/4 a no más de 1/2 giro después de hacer
contacto con la barra. Si está instalando una barra de torsión ranurada,
NO ajuste los tornillos en las ranuras.
8.
Fijar la ménsula de montaje a la pared y al abre-puertas de garaje. Para
fijar la ménsula a la pared usar tornillos de 14-10x2 pulg.

Table of Contents

Related product manuals