EasyManua.ls Logo

Chamberlain 8500 - Position and Mount the Garage Door Opener

Chamberlain 8500
76 pages
Print Icon
To Next Page IconTo Next Page
To Next Page IconTo Next Page
To Previous Page IconTo Previous Page
To Previous Page IconTo Previous Page
Loading...
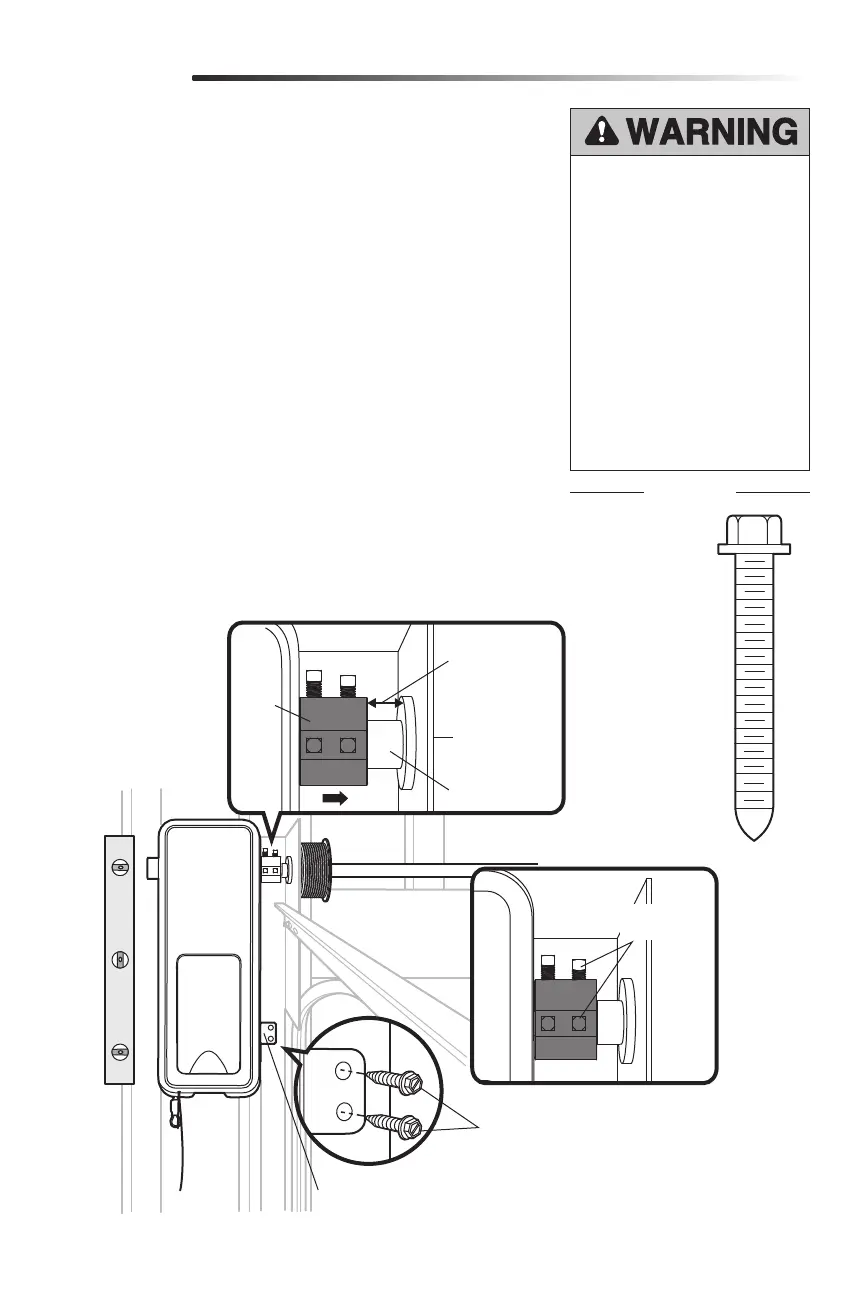
8
Bearing
Plate
Collar
Torsion Bar
.25" min. space
between
bearing and
collar
Mounting Bracket
Screws 14-10x2"
Set screws
(Torsion bar)
Installation
HARDWARE
Position and Mount the Garage Door Opener
1
NOTE: For additional mounting options refer to the accessories page.
1. Close the garage door completely.
2. Slide the garage door opener onto the end of the torsion bar. If the torsion bar is too
long or damaged, you may need to cut the torsion bar.
Ensure the collar does NOT touch the bearing.
3. Use a level to position and vertically align the garage door opener. Verify the
mounting bracket is located on a solid surface such as wood, concrete or door/flag
bracket. If installing on drywall, the mounting bracket MUST be attached to a stud.
4. When the garage door opener is properly aligned, mark the mounting bracket holes.
If necessary, tighten collar screws on the torsion bar to hold garage door opener in
place while marking holes.
NOTE: The garage door opener does not have to be flush to wall.
5. Remove the garage door opener from torsion bar. Drill 3/16 inch pilot holes at the
marked locations. Drill through metal door rail plates if necessary.
6. Slide the garage door opener back onto the torsion bar until pilot holes align with
bracket.
7. Tighten the 2 square head set screws on the torsion bar. For a hollow torsion bar,
tighten screws 3/4 - 1 full turn after making contact with the bar. For a solid shaft
torsion bar, tighten screws 1/4 - no more than 1/2 turn after making contact with
the shaft. If installing on a keyed torsion bar, DO NOT tighten the screws into the
keyway.
8. Secure the mounting bracket to the wall and to the garage door opener. Use the
14-10 x 2" screws to secure the mounting bracket to the wall.
To prevent possible SERIOUS INJURY
or DEATH:
Concrete anchors MUST be used if
mounting bracket into masonry.
NEVER try to loosen, move or
adjust garage door, springs,
cables, pulleys, brackets or their
hardware, ALL of which are under
EXTREME tension.
ALWAYS call a trained door
systems technician if garage door
binds, sticks or is out of balance.
An unbalanced garage door might
NOT reverse when required.
Garage door opener MUST be
mounted at a right angle to the
torsion bar to avoid premature
wear on the collar.
Screw
14-10x2" (2)

Table of Contents

Related product manuals