EasyManua.ls Logo

Chamberlain Security+ 9902 - Test the Protector System; Test the Safety Reverse System

Chamberlain Security+ 9902
40 pages
Print Icon
To Next Page IconTo Next Page
To Next Page IconTo Next Page
To Previous Page IconTo Previous Page
To Previous Page IconTo Previous Page
Loading...
Adjustment Step 4
Test the Safety Reverse System
Test
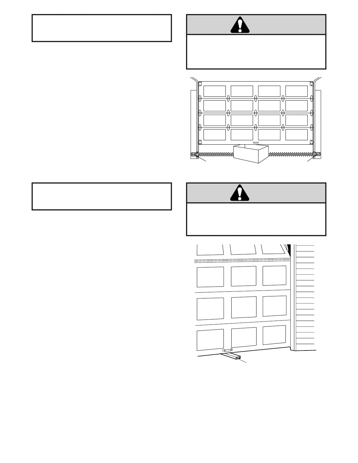
• With the door fully open, place a one-inch board
(or a 2x4 laid flat) on the floor, centered under the
garage door.
• Operate the door in the down direction. The door must
reverse on striking the obstruction.
Adjustment
If the door stops on the obstruction, it is not traveling far
enough in the down direction.
• Increase the DOWN limit by turning the DOWN limit
adjustment screw counterclockwise 1/4 turn.
• Repeat the test.
On a sectional door, make sure limit adjustments do
not force the door arm beyond a straight up and down
position. See the illustration on page 26.
• When the door reverses on the one-inch board, remove
the obstruction and run the opener through 3 or 4
complete travel cycles to test adjustment.
If the door will not reverse after repeated adjustment
attempts, call for professional garage door service.
Important Safety Check
Repeat Adjustment Steps 1-4 after:
• Each adjustment of door arm length, force controls or
limit controls.
• Any repair to or adjustment of the garage door
(including springs and hardware).
• Any repair to or buckling of the garage floor.
• Any repair to or adjustment of the opener.
1 Inch Obstruction
Failure to test and adjust the safety reverse system may
result in serious injury or death to persons trapped by a
closing garage door.
Repeat this test once a month and
adjust as needed.
30
Adjustment Step 3
Test The Protector System
®
• Press the remote control push button to open the door.
• Place the opener carton in the path of the door.
• Press the remote control push button to close the door.
The door will not move more than an inch, and the
opener light will flash for 5 seconds.
Professional service is required if the opener closes the
door when the safety reversing sensor is obstructed.
The garage door opener will not close from a remote if the
indicator light in either sensor is off (alerting you to the
fact that the sensor is misaligned or obstructed).
The garage door can be closed by pressing and holding the
Door Control push bar until down travel is completed.
Safety Reversing Sensor
Safety Reversing Sensor
Without a properly working safety reversing sensor,
persons (particularly children) could be seriously injured
or killed if trapped by a closing garage door.
Repeat this
test once a month.
One-Inch board (or a 2x4 laid flat)
WARNING
WARNING

Table of Contents

Related product manuals