EasyManua.ls Logo

Chamberlain SL585 - Page 27

Chamberlain SL585
40 pages
Print Icon
To Next Page IconTo Next Page
To Next Page IconTo Next Page
To Previous Page IconTo Previous Page
To Previous Page IconTo Previous Page
Loading...
27
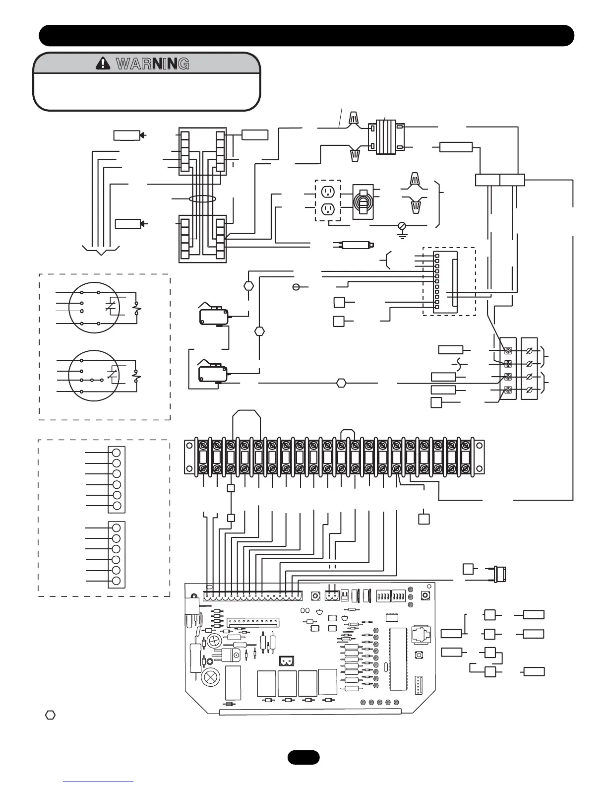
AB
CD
OL
NO TES:
1. VO LTA GE: 115, 208, & 230 VO LT -
2. HORSEPO WER: 1/2 & 1 HP.
3. TRANSFORMER PRIMARY VOLTAGE IS
THE SAME AS THE OPERATOR
VOLTAGE. SECONDARY 24V/60VA.
FOR REFERENCE PRIMARY WIRE
COLORS: 120V BLACK, 208V RED, 230V
ORANGE, 460V PURPLE, 575V GREY.
4. TERMINAL DESIGNATIONS SHOWN
FOR 115V.
6. FOR SINGLE PHASE 115V OPERATION, THERE IS AN ADDITIONAL WHITE WIRE FROM
CONTACTOR A2 TO CONTACTOR B4 AND THE BLACK WIRE FROM THE TRANSFORMER
TO CONTACTOR B4 GOES TO B6.
5. TERMINAL BLOCK IN LIMIT SWITCH
ENCLOSURE (SL595 ONLY).
3
ON
OFF
40-32358F
TO J2-1
PURPLE
A1
CONTACTOR
13
5
3
1
A2
14
6
4
2
A1
13
5
3
1
A2
14
6
4
2
Y (SL595 WHT)
GY (SL595 GN)
PU (SL595 RD)
BLUE
WHITE
ORANGE
TO J2-2
TO MOTOR
TB2-CD
BLACK
YELLOW
WHITE
BLACK (SL595 ORANGE)
SEE NOTE 3
CONTACTOR A & B
208/230V SHOWN
SEE NOTE 6
LINE
GRN
LOAD
24VAC/60VA
BLUE
YELLOW
FUSE 3.2A
ON/OFF
SWITCH
SERVICE OUTLET
(115V) ONLY
POWER IN
SEE NOTE 1
L1
L2
G
J2 PLUG
ON PCB
WHITE
BLACK
WHITE
BLACK
BLACK
BLACK
OVERLOAD
RPM
BOARD
BLACK
RED
WHITE
BLUE
YELLOW
YELLOW
BLUE
YELLOW
11
10
9
8
7
6
5
4
3
2
1
ORANGE
PURPLE
GREEN GROUND
CONTACTOR A
CONTACTOR B
A1
A1
ORANGE
PURPLE
OR
P
1
2
L/S “A”
NC
C
L/S “B”
NC
C
YEL/BLK
Y/BK
GY
BK
(TB2)
BL
Y
PU
GY
BL
Y
PU
1
3
8
5
4
2
OL
BL-BK
BL-BK
115V. BRAKE
SOLENOID
115V. CONNECTION
230V. BRAKE
SOLENOID
208/230V. CONNECTION
BL-BK
BL-BK
4
5 2
3
8
1
LOOP WIRING
R4
TB1-5
TB2-AB
TB2-CD
FREE EXIT
LOOP
HARNESS
(10 PIN)
TB1-8
TB1-3
TB2-AB
TB2-CD
INTERRUPT
LOOP
HARNESS
(10 PIN)
4
6
7
8
9
10
4
6
7
8
9
10
Y/BK
TB1-15
TB1-3
TB1-6
ALARM
4
FREE EXIT LOOP
RADIO
TERMINAL
BLOCK
R1
R2
R3
R4
BLUE
BLACK
Y/BK
BROWN
GREEN
FACTORY
INSTALLED
RADIO
-
+
1
2
3
45678910
12
13
14
15
16
17
18
19
20
11
(TB1)
PURPLE
PUR/WHT
RESET
STOP
GREEN
Y/BK
BROWN
ORANGE
GREEN
GRAY
BLACK
BLACK
BLUE
WHITE
RED
OR/BLK
BLUE
R1
OR
TB1-7
GRN
TB1-4
Y/BK
TB1-3
OPEN
CLOSE
STOP
TB1-5
J1-3
Y/BK
RESET
R2
RADIO
SHADOW
VDC COM
CLOSE
STOP
SOFT OPEN
HARD OPEN
INTERRUPT
OPEN CLOSE
EDGE/PHOTO
EYE
MASTER
SECOND
MAGLOCK
24 VAC ACCESSORY
POWER
INTERRUPT
LOOP
EXIT LOOP
FIELD CONNECTIONS
1 2 3 4 5 6 7 8 9 10 11 12 13 14 15 16
J1
J4
1 2
J2
(GL CONTROL BOARD)
A
B
24 VAC
RADIO
SIGNAL
TB1-20
TB1-19
TB1-18
TB1-17
NOTE: SL595 ONLY
swap green and
red wire
locations on
contactor B
To protect against fire and electrocution:
• DISCONNECT power BEFORE installing or servicing operator.
W A R N I N G
Y/BK
Y/BK
Y/BK
(100db)
SAFETY
ALARM
RD
BK
1 PHASE.
YELLOW
ΣΙΝΓΛΕ ΠΗΑΣΕ ΩΙΡΙΝΓ ∆ΙΑΓΡΑΜ

Related product manuals