EasyManua.ls Logo

Champion ci 110 - Page 91

Champion ci 110
101 pages
Print Icon
To Next Page IconTo Next Page
To Next Page IconTo Next Page
To Previous Page IconTo Previous Page
To Previous Page IconTo Previous Page
Loading...
Champion Compressors Ltd. Manual No. 975203 Rev H
85
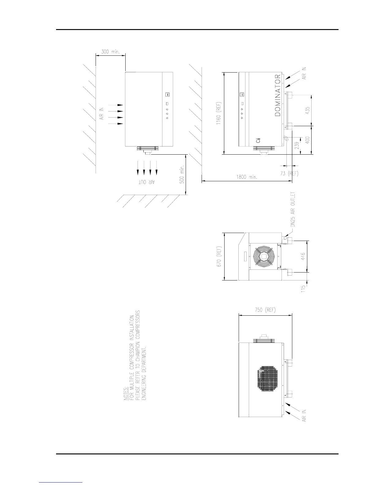
Fig. 20 - Ci 75SD / 110 Base Mount.

Table of Contents

Related product manuals