EasyManua.ls Logo

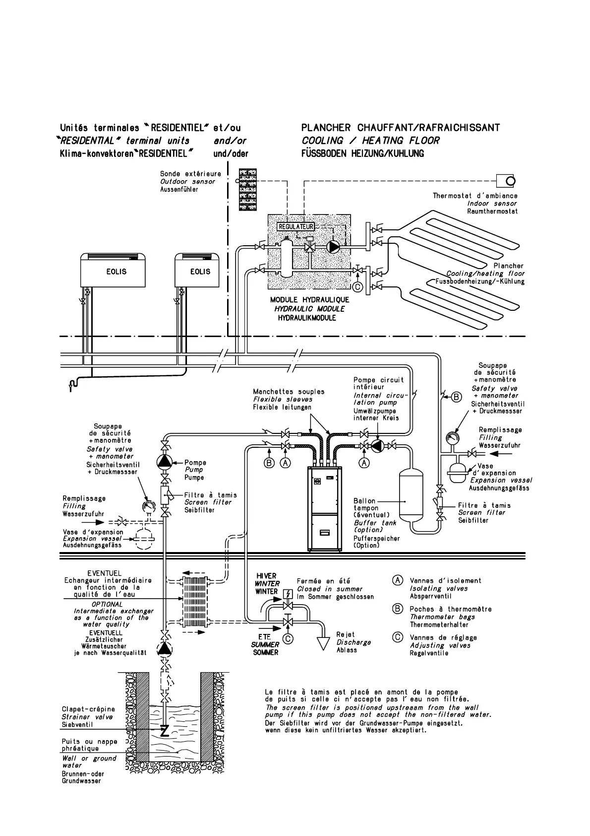
CIAT AUREA 60 - Block Diagram for Installation on Well or Ground Water; Block Diagram for Installation on

CIAT AUREA 60
34 pages
Print Icon
To Next Page IconTo Next Page
To Next Page IconTo Next Page
To Previous Page IconTo Previous Page
To Previous Page IconTo Previous Page
Loading...
30
  
 
  

 
 
   


  
  

Related product manuals