EasyManua.ls Logo

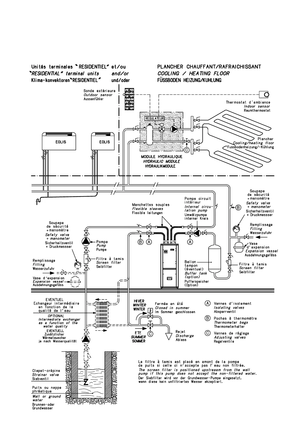
CIAT AUREA 70 - Installation Diagram for Well;Ground Water; Block Diagram for Well or Ground Water Installation

CIAT AUREA 70
34 pages
Print Icon
To Next Page IconTo Next Page
To Next Page IconTo Next Page
To Previous Page IconTo Previous Page
To Previous Page IconTo Previous Page
Loading...
30
  
 
  

 
 
   


  
  

Related product manuals