EasyManua.ls Logo

Cisco ASR 9006 - Installing the Chassis in a 2-Post Rack

Cisco ASR 9006
284 pages
Print Icon
To Next Page IconTo Next Page
To Next Page IconTo Next Page
To Previous Page IconTo Previous Page
To Previous Page IconTo Previous Page
Loading...
Installing the Chassis in a 2-Post Rack
This section describes how to install the chassis in a 2-post telco-style rack. Two people can lift an empty
router chassis using the handles on the sides. To accommodate racks with different hole patterns in their
mounting flanges, the chassis rack-mounting flanges have three groups of eight oblong screw holes on each
side.
An empty chassis weighs approximately 150 pounds (68 kg). You need two people to slide the chassis into
the equipment rack safely.
Caution
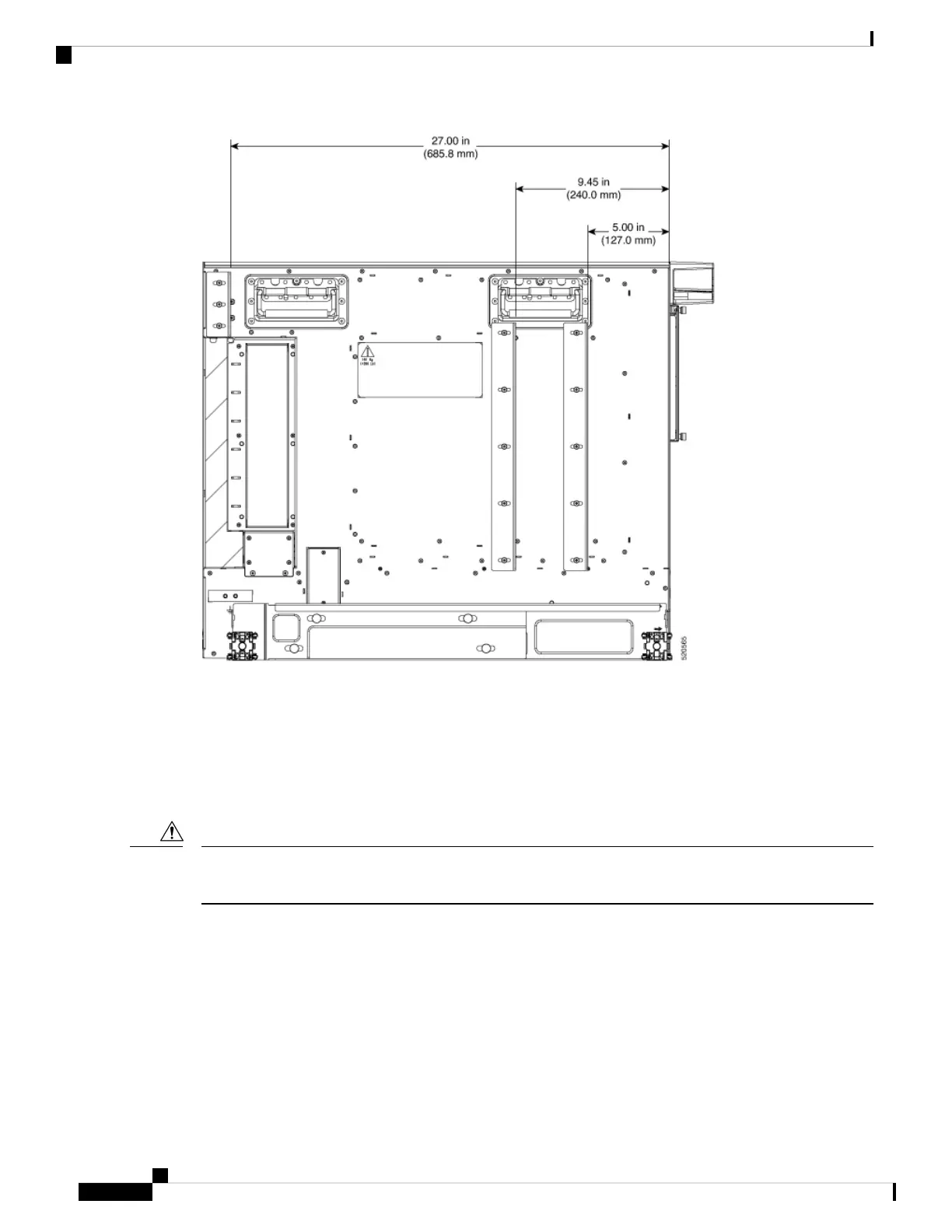
This figure shows the orientation of the Cisco ASR 9010 Router chassis to the rack posts (3” or 6” channel
width) of an industry-standard 2-post rack and components used in the installation.
Cisco ASR 9000 Series Aggregation Services Router Hardware Installation Guide
104
Unpacking and Installing the Chassis
Installing the Chassis in a 2-Post Rack

Table of Contents

Other manuals for Cisco ASR 9006

Related product manuals