EasyManua.ls Logo

Cisco ASR 903 - Chassis Grounding Procedure

Cisco ASR 903
64 pages
To Next Page IconTo Next Page
To Next Page IconTo Next Page
To Previous Page IconTo Previous Page
To Previous Page IconTo Previous Page
Loading...
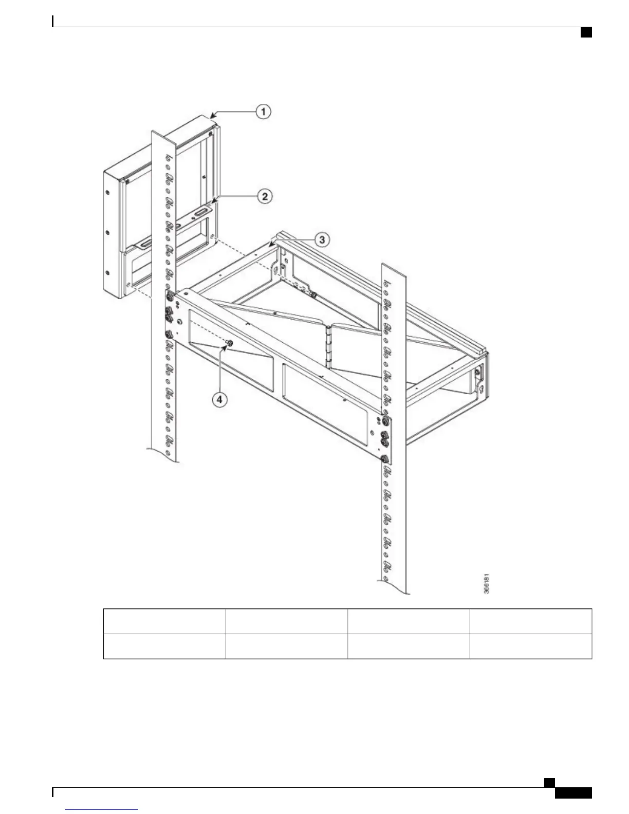
Plenum base3Air baffle1
Secure screw to Plenum base4Side plate2
Cisco ASR 903 and ASR 903U Aggregation Services Router Hardware Installation Guide
9
Installing the Cisco ASR 903 Router
Installing the Router Chassis in the Rack

Table of Contents

Other manuals for Cisco ASR 903

Related product manuals