EasyManua.ls Logo

ClimateMaster TCH096 - Page 11

ClimateMaster TCH096
80 pages
Print Icon
To Next Page IconTo Next Page
To Next Page IconTo Next Page
To Previous Page IconTo Previous Page
To Previous Page IconTo Previous Page
Loading...
THE SMART SOLUTION FOR ENERGY EFFICIENCY
Tranquility
®
Compact Belt Drive (TCH/V) Series
Rev.: July 25, 2017
11
climatemaster.com
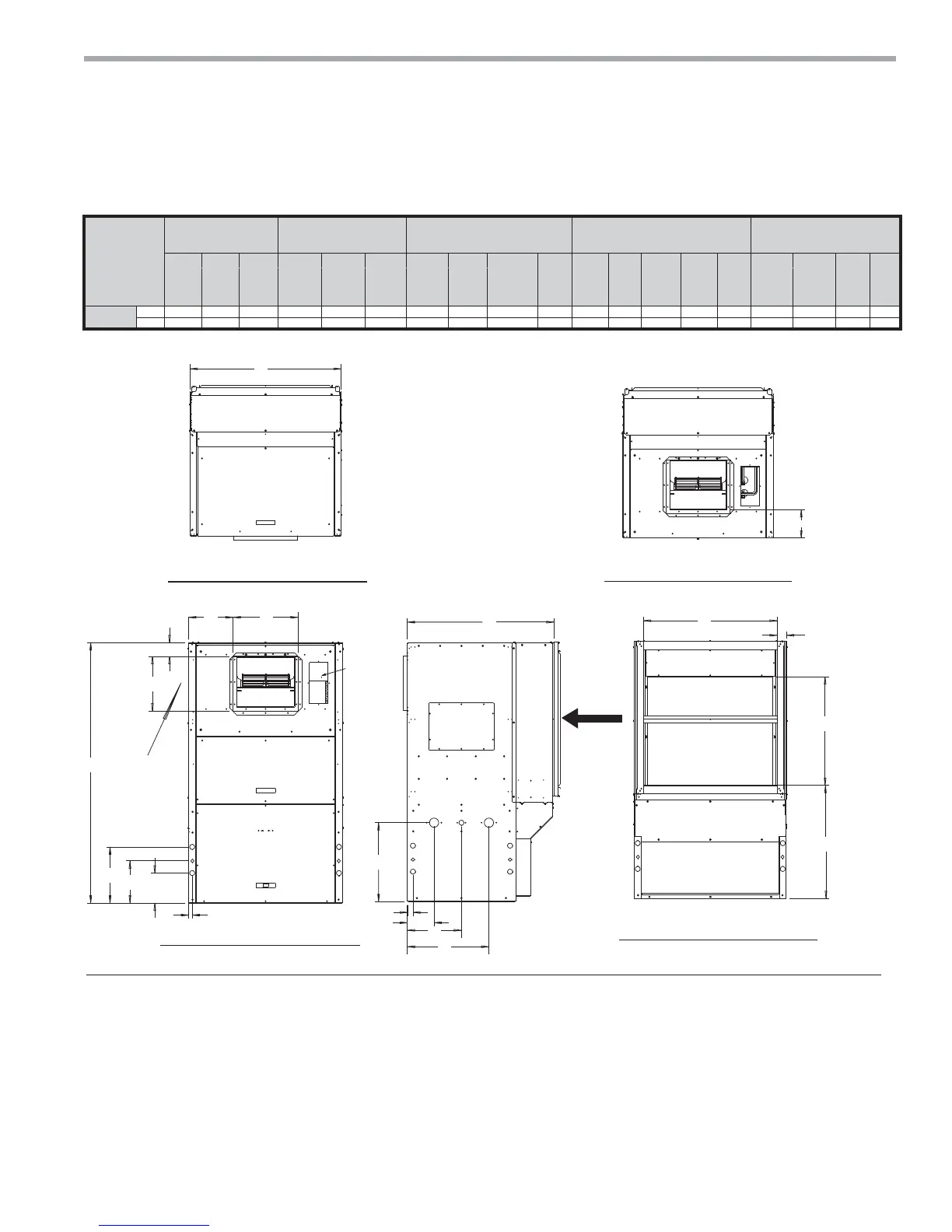
TCV072-120 Dimensional Data
S
T
U
V
B
A
R
M
K
N
L
D
E
C
3.68
O1
P
O2
Q
F
Notes:
1. While clear access to all removable panels may not be
required, installer should take care to comply with all building
codes and allow adequate clearance for future field service.
2. Units require 3 feet (91 cm) clearance for water connections,
WSE coil air bleed, CAP, CSP, BSP, ACP, UPA, and MSP.
3. Factory supplied controller (aquastat) is inside unit completely
wired. To field adjust temperature setting remove ACP panel and push button.
4. Internally trapped, externally vented.
5. For top discharge units, UPA in on top and BSP is on front. For front discharge
units, UPA is on front and BSP in on top. (allow 3 feet above unit for service).
CAP
UPA
CSP, ACP
WSE
Front View
Back View
Top View
Rear Return Front Discharge
Rear Return Front Discharge
Legend
BSP = Blower Service Panel
CSP = Compressor Service Panel
CAP = Control Access Panel
MSP = Motor Service Panel
UPA = Upper Pulley Access
ACP = Aquastat Controller Panel
WSE = Waterside Economizer
Note 2
Note 2
Right
Side
View
Note 5
MSP
Note 2
BSP
Note 5
BSP
Note 5
WSE Coil Air
Bleed Access
Alternate
MSP
Return
Air
Flow
7.72
Rear Return Top Discharge
BSP
Note 5
UPA
Note 5
Rear Return Front Discharge
Top View
Model
Overall Cabinet
Discharge Connection
Duct Flange
Water Connections Electric Knockouts
Return Air Connections Using
Return Air Opening
A B C D E F K L M N O 1 O 2 P Q R S T U V
Depth Width Height
Supply
Width
Supply
Depth
1
Water
Inlet
2
Water
Outlet
3
Conden-
sate
Return
Depth
Return
Height
072-120
in. 39.5 41.0 69.8 17.5 14.8 11.9 22.0 7.3 14.5 21.3 8.0 15.0 11.3 1.0 1.5 36.3 29.4 30.6 2.7
cm. 100.3 104.1 177.2 44.5 37.5 30.2 55.9 18.4 36.8 54.0 20.3 38.1 28.6 2.5 3.8 96.2 74.7 77.8 6.9
TCV 072-120 with WaterSide Economizer

Table of Contents

Related product manuals