EasyManua.ls Logo

ClimateMaster TCH096 - Page 8

ClimateMaster TCH096
80 pages
Print Icon
To Next Page IconTo Next Page
To Next Page IconTo Next Page
To Previous Page IconTo Previous Page
To Previous Page IconTo Previous Page
Loading...
CLIMATEMASTER WATER-SOURCE HEAT PUMPS
Tranquility
®
Compact Belt Drive (TCH/V) Series
Rev.: July 25, 2017
8
ClimateMaster Water-Source Heat Pumps
S
V
U
T
C
K
M
L
87.00
[221 CM]
44.16
[112.18 CM]
B
A
1.00
[2.54 CM]
12.75
[32.39 CM]
R
Q
P
O
F
G
ED
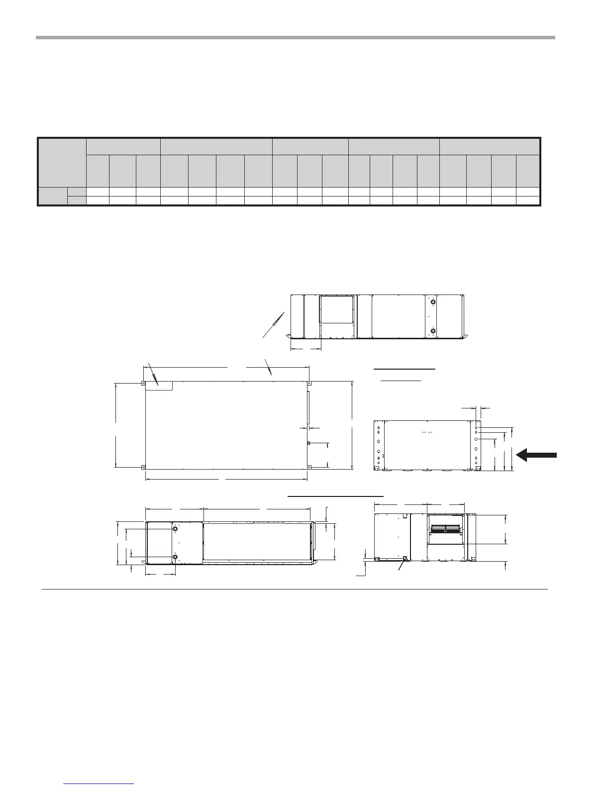
Notes:
1. Service access is required for all removable panels and installer
should take care to comply with all building codes allowing
adequate clearance for future field service.
2. Units are shipped with air filter rails that are not suitable for
supporting return air ductwork. An air filter frame with duct
mounting collar is available as an accessory.
3. Discharge flange and hanger brackets are factory installed.
4. Condensate drain is 3/4” FPT and is located on cabinet end
opposite the compressor.
5. Unit control box is on side opposite return air (not convertible)
6. Units require 3 feet (91cm) clearance for water connections,
CAP, CBP, EAP, MSP, ACP and BSP service panels.
7. Blower service access is through back panel on straight discharge
units or through panel opposite air coil on back discharge units.
8. Factory supplied controller (aquastat) is inside unit completely wired.
To field adjust temperature setting, remove ACP panel and push button.
9. Expansion valve access panel is opposite return air side.
10. WSE coil air bleed access is through CAP.
15.00 (38.1)
1.3 (3.3cm)
Notes 5, 6
3/4” Drain
FPT
Left Side View
Right Return
Right Return Back Discharge
F
R
O
N
T
Top View
Front View
Back View
Right Side View
WSE
CBP
Notes 6, 8, 10
CAP, ACP
Notes 6,7
MSP BSP
Notes 6, 9
EAP
Straight Discharge
Return
Air
Flow
Legend
BSP = Blower Service Panel
CAP = Compressor Access Panel
CBP = Control Box Panel
MSP = Motor Service Panel
ACP = Aquastat Controller Panel
EAP = Expansion Valve Access Panel
WSE = Waterside Economizer
TCH 072-120 with WaterSide Economizer
TCH072-120 w/WSE Dimensional Data
Model
Overall Cabinet
Discharge Connections
Duct Flange
Water Connections Electrical Knockouts
Return Air Connections
Using Return Air Opening
A
Width
B
Depth
C
Height
DE
Supply
Depth
F
Supply
Width
G
Supply
Height
KL
1
Water
Outlet
M
2
Water
Inlet
OP Q R S
Return
Depth
T
Return
Height
UV
072-120
in.
46.3 84.9 21.6 23.9 17.0 13.5 7.8 15.0 18.3 4.0 2.0 18.8 16.8 13.8 54.0 18.4 1.0 29.4
cm.
117.6 215.6 54.9 60.9 43.2 34.3 19.8 38.1 46.4 10.2 5.1 47.8 42.7 35.1 137.2 45.7 2.5 74.7

Table of Contents

Related product manuals