EasyManua.ls Logo

ClimateMaster Tranquility 16 Compact Series - Model Nomenclature and Overview; Model Nomenclature Details

ClimateMaster Tranquility 16 Compact Series
84 pages
Print Icon
To Next Page IconTo Next Page
To Next Page IconTo Next Page
To Previous Page IconTo Previous Page
To Previous Page IconTo Previous Page
Loading...
climatemaster.com
3
Tranquility
®
Compact (TC) Series
Rev.: July 7, 2020
THE SMART SOLUTION FOR ENERGY EFFICIENCY
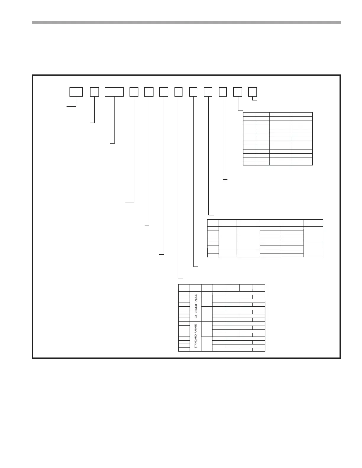
Model Nomenclature – General Overview
{
TC H 0 3 6 CA G 3 0 A L B S
1 2 3 4 5 6 7
8
9 10 11 12 13 14 15
TC = TRANQUILITY COMPACT R410A
MODEL TYPE
H = HORIZONTAL
CONFIGURATION
V = VERTICAL
006 - E,G
UNIT SIZE
009 - E,G
012 - E,G
018 - E,G
024 - E,F,G,H
030 - E,FG,H
036 - E,FG,H
042 - F,G,H,N
048 - F,G,H,N
060 - F,G,H,N
REVISION LEVEL
A= CURRENT REVISION FOR ALL SIZES
VOLTAGE
C = CXM
CONTROLS
D = DXM2
L = CXM w/LON
M = DXM2 w/LON
N = CXM w/MPC
P = DXM2 w/MPC
0 = NONE
FUTURE USE
HEAT EXCHANGER OPTIONS
L = LEFT RETURN
RETURN AIR OPTIONS
R = RIGHT RETURN
F = FRONT RETURN and VERTICAL 009 - 030 AND 041 ONLY
SUPPLY AIR OPTIONS
S = STANDARD
1
Not available for sizes 006, 009, 012, 041
2
Not available for size 041
015 - E,G
V = LEFT RETURN S.S. DRAIN PAN
W = RIGHT RETURN S.S. DRAIN PAN
Z = FRONT RETURN S.S. DRAIN PAN and VERTICAL 009-030 AND 041 ONLY
Option
Supply
Configuration
Motor
T
B
Top
Back
TCV
TCH
PSC
PSC
S Straight TCH PSC
V
1
TCV PSC Hi Static
Y
1
TCH
Z
1
TCH
Top
Back
Straight
K
2
TCV ECM-CV
P
2
TCH
W
2
1
2
2
2
3
2
TCH
TCV
TCH
TCH
Top
Back
Straight
Top
Back
Straight
PSC Hi Static
PSC Hi Static
ECM-CV
ECM-CV
ECM-CT
ECM-CT
ECM-CT
G = 208/230/60/1
E = 265/60/1
H = 208/230/60/3
F = 460/60/3
N = 575/60/3
OPTION
A
C
J
N
1
2
3
4
TIN PLATED
AIR COIL
COPPER
CUPRO-NICKEL
WATER COIL
E-COATED
ECON COIL
WATER SIDE
ECONOMIZER
NO
YES
NO
N/A
N/A
YES
YES
YES
NO
NO
WATER COIL
YES
YES
NO
YES
NO
YES
NO
N/A
N/A
YES
NO
NO
YES
NO
NO
YES
041 - F,G,H,N (TCV ONLY)
CABINET INSULATION
OPTION
1
A
J
K
2
C
L
M
3
E
N
P
1” FILTER
RAIL
RANGE
ULTRA
QUIET
2” FILTER
RAIL
1” FILTER
FRAME
2” FILTER
FRAME
4
G
R
S
NO
YES
NO
YES
YES
YES
YES
YES
NO
NO
NO
NO
NO
NO
YES
YES
YES
YES
NO
NO
NO
NO
NO
NO
YES
YES
YES
YES
NO
NO
NO
NO
NO
NO
YES
YES
YES
YES
NO
NO
NO
NO
NO
NO
w/DISCONNECT
A = CXM
B = DXM2
E = CXM w/LON
K = DXM2 w/LON
R = CXM w/MPC
S = DXM2 w/MPC
Note: Above model nomenclature is a general reference. Not all congurations are available on all models. Consult selection software for detailed information.

Table of Contents

Other manuals for ClimateMaster Tranquility 16 Compact Series

Related product manuals