EasyManua.ls Logo

ClimateMaster Tranquility TCH 036 - Page 21

ClimateMaster Tranquility TCH 036
84 pages
Print Icon
To Next Page IconTo Next Page
To Next Page IconTo Next Page
To Previous Page IconTo Previous Page
To Previous Page IconTo Previous Page
Loading...
climatemaster.com
21
Tranquility
®
Compact (TC) Series
Rev.: July 7, 2020
THE SMART SOLUTION FOR ENERGY EFFICIENCY
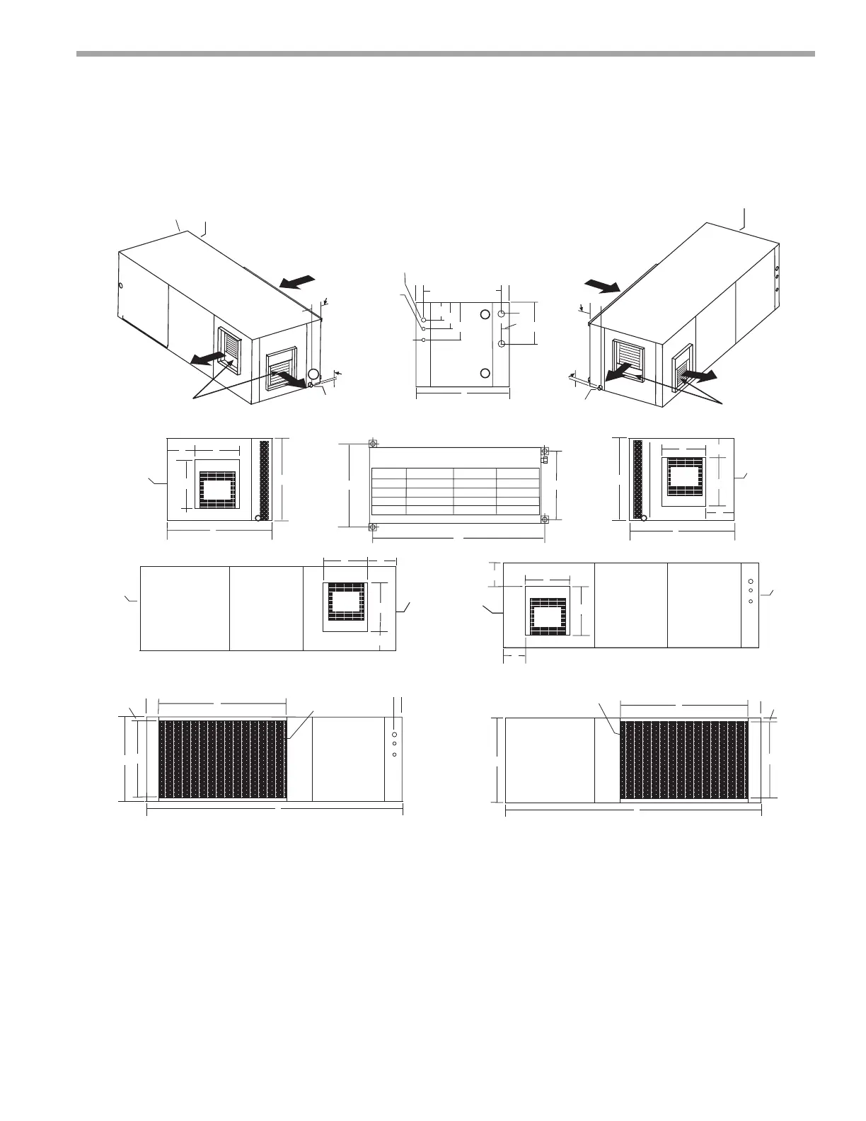
TC - Horizontal – Dimensional Data, Cont’d.
F
Right Return Straight Discharge
Front
L
N
O
M
Right Return
Front
Straight
Discharge
ASP
Back
Discharge
Condensate
3 / 4" FPT
3.3"
[83.8mm]
0.7"
[17.8mm]
Front-View
E
D
K
J
2
1
1.1 [27.9mm]
A
CCP
BSP
Right Return Right View -
Air Coil Opening
Air Coil
C
T
S
B
R
Q
Front
L
N
O
M
Left Return Straight Discharge
Front
CCP
BSP
LEFT RETURN RIGHT RETURN
Air Coil
ASP
Front
Left Return Left View -
Air Coil Opening
1.75 [44.5mm]
C
T
R
QS
B
Unit Hanger Detail
U
V
Front
W
Model U V W
006-012 34.1 [86.6] 21.1 [53.6] 16.9 [42.9]
015-030 43.1 [109.5] 22.2 [56.4] 18.0 [45.7]
036-042 47.1 [119.6] 22.2 [56.4] 18.0 [45.7]
048-060 54.1 [137.4] 26.2 [66.5] 22.0 [55.9]
Right Return Back Discharge
A
Air Coil Side
C
P
N
O
M
ASP
BSP
CCP
Front
Left Return
0.7" [17.8mm]
3.3"
[83.8mm]
ASP
CCP
CCP
Condensate
3 / 4" FPT
Air Coil Side
M
A
C
Left Return Back Discharge
N
O
P
BSP
Blower
Outlet
Blower
Outlet
Blower
Outlet
Blower
Outlet
G
H
GC
Note: Blower service panel requires 2’ service access
Power Supply
3 / 4" [19.1mm] Knockout
1 / 2"
[12.7mm]
Knockout
Low Voltage
1 / 2" [12.7mm]
Knockout
3
Straight
Discharge
Back
Discharge
Note: Choose either
back or straight discharge
Note: Choose either
back or straight discharge
Notes:
1. While clear access to all removable panels is not required, installer should take care to comply
with all building codes and allow adequate clearance for future field service.
2. Units are shipped with air filter rails that are not suitable for supporting return air ductwork. An air filter frame
with duct mounting collar is available as an accessory, see the ClimateMaster Accessory Submittal set for
futher information on this frame.
3. Discharge flange and hanger brackets are factory installed.
4. Condensate is 3/4” FPT.
5. Blower service panel requires 2’ service access.
6. Blower service access is through back panel on straight discharge units or through panel opposite air coil
on back discharge units
Legend:
CCP = Control/Compressor Access Panel
BSP = Blower Service Panel
*ASP = Additional Service Panel (not required)
Note:
*ASP are removable panels that provide additional access to the units interior.
Clear access to ASP panels is not required and they are not to be used in place of the mandatory CCP and BSP panels.
AA
BB
AA
BB

Table of Contents

Related product manuals