EasyManua.ls Logo

CLIVET WSAN-EE 21 - Page 46

CLIVET WSAN-EE 21
56 pages
Print Icon
To Next Page IconTo Next Page
To Next Page IconTo Next Page
To Previous Page IconTo Previous Page
To Previous Page IconTo Previous Page
Loading...
M02R40C8-00 29/07/08 page 46
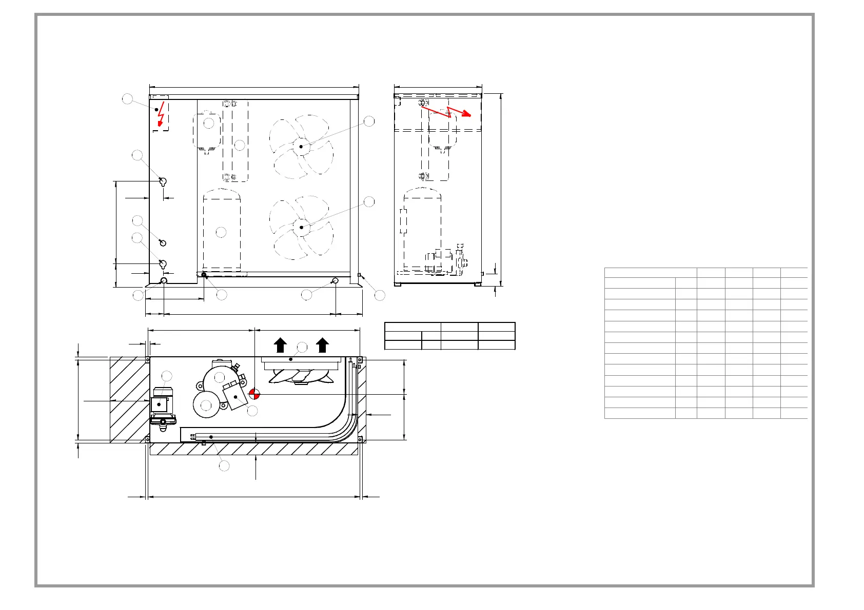
Size 81-91-101-121
"G"
2
3
4
5
5
5
6
7
8
9
10
11
11
117
1087 170
1326
370
50821 21
134315
15
556
1225
78
500
150
100
(12)
(12)
(12)
BA
1
7
3
1
N
M
OP
86.5
C
27
W1
W4
W2
W3
13
13
81 / 91 101 / 121
A mm. 150 175
B mm. 555 500
GRANDEZZE
The units require minimum clearances for operation and maintenance. The following sketch describes the minimum clearances to be considered. In the event of multiple units, the functional clearances
must be doubled.
(1) COMPRESSOR
(2) ELECTRICAL PANEL
(3) INTERNAL EXCHANGER
(4) EXTERNAL EXCHANGER
(5) HELICAL FANS
(6) PUMP
(7) EXPANSION VESSEL
(8) WATER OUTLET (STANDARD UNIT)
(9) WATER INLET (STANDARD UNIT)
(10) POWER INPUT
(11) CONDENSATE DISCHARGE
(12) CLEARANCE ACCESS RECOMMENDED
(13) LIFTING HOLES
("G") BARYCENTRE
SIZE 81 91 101 121
M
mm
764 766 758 763
N
mm
579 577 585 580
O
mm
217 217 228 229
P
mm
291 291 280 279
Length
mm
1087 1087 1373 1373
Depth
mm
411 411 555 555
Height
mm
1175 1175 1225 1225
W1
kg
57 58 61 63
W2
kg
43 44 47 48
W3
kg
43 43 50 52
W4
kg
32 33 39 39
Operating weight
kg
174 178 198 201
Shipping weight
kg
180 184 203 206

Related product manuals