EasyManua.ls Logo

CLIVET WSH-XEE2 45.2 - Page 59

CLIVET WSH-XEE2 45.2
64 pages
Print Icon
To Next Page IconTo Next Page
To Next Page IconTo Next Page
To Previous Page IconTo Previous Page
To Previous Page IconTo Previous Page
Loading...
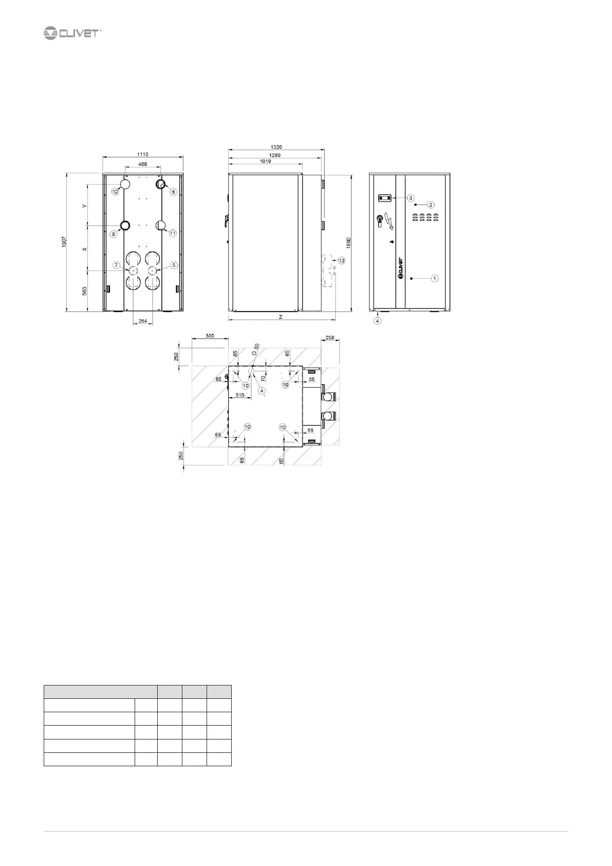
Dimensional - Version standard with hydronic unit option and oversize
enclosure (MOBMAG)
Size 70.2 - 90.2
1. Compressor compartment
2. Electrical panel
3. Unit control keypad
4. Power input
5. Hot side water return (3” Victaulic)
6. Hot side water supply (3” Victaulic)
7. Cold side water return (3” Victaulic)
8. Cold side water supply (3” Victaulic)
9. Functional spaces
10. Vibration damper mounts Ø 12,5
11. Partial recovery water return (2” Victaulic)
12. Partial recovery water supply (2” Victaulic)
13. Hot side water return without pumps (3” Victaulic)
14. Cold side water return without pumps (3” Victaulic)
Size 70.2 80.2 90.2
Length mm 1110 1110 1110
Height mm 1910 1910 1910
Depth mm 1580 1580 1580
Operating weight kg 956 993 1103
Shipping weight kg 888 920 1002
The weights refer to the unit equipped with the following options: cold side hydronic unit VARYFLOW+ (VARYC), hot side hydronic unit VARYFLOW+ (VARYH), oversize enclosure (MOBMAG)
The presence of optional accessories may result in a substantial variation of the weights shown in the table.
DAA8P70 2_90 2 MAG REV00


Table of Contents