EasyManua.ls Logo

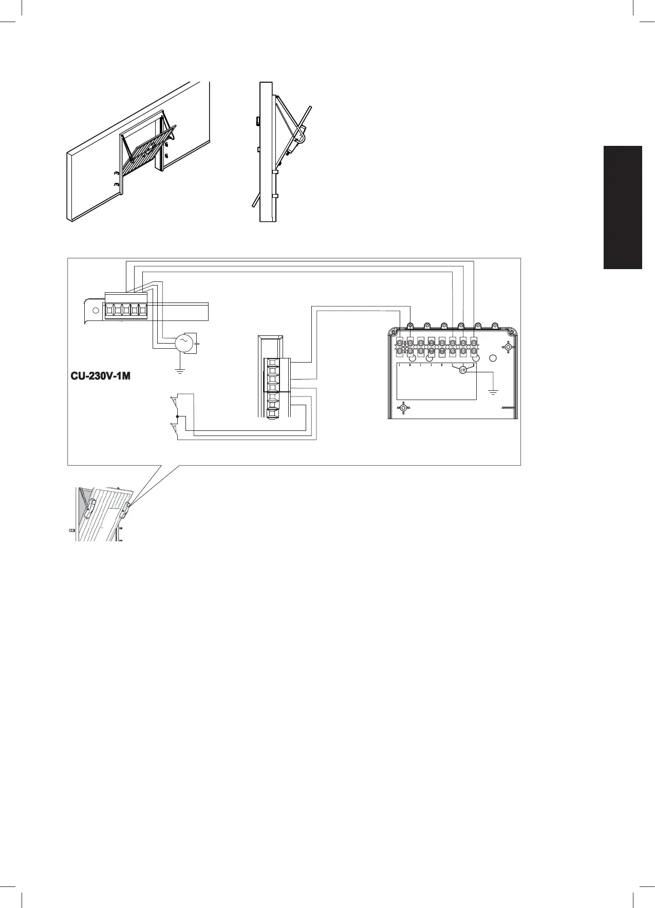
Comunello CU-230V-1M - Double motor installation (up to 16 m²); SALIENT 230 V Wiring Diagram

Comunello CU-230V-1M
14 pages
Print Icon
To Next Page IconTo Next Page
To Next Page IconTo Next Page
To Previous Page IconTo Previous Page
To Previous Page IconTo Previous Page
Loading...
21
COMUNELLO ®Copyright 2019 - All rights reserved
ENGLISH
Double motor installation (up to 16 m
2
)
CN1
12
3
4
5
GND
FCA
FCC
LAMP +24V
FOTO+
1
2
3
4
5
CN2
6
GND
L N
MOT1 OPEN
MOT1 COM
MOT1 CLOSE
M
INTERNAL MOTOR 230V 50HZ
END STOP CLOSE (N.C.)
END STOP OPEN (N.C.)
(SALIENT 230V - WITH MAIN BOARD) (SALIENT 230V)
LAMP
LAMP+
COMMON
END STOP CLOSED
END STOP OPEN
CLOSED
COMMON
OPEN

Related product manuals