EasyManua.ls Logo

Comunello CU - 230V - HP - Page 51

Comunello CU - 230V - HP
Print Icon
To Next Page IconTo Next Page
To Next Page IconTo Next Page
To Previous Page IconTo Previous Page
To Previous Page IconTo Previous Page
Loading...
51
COMUNELLO ®Copyright 2019 - All rights reserved
DEUTSCH
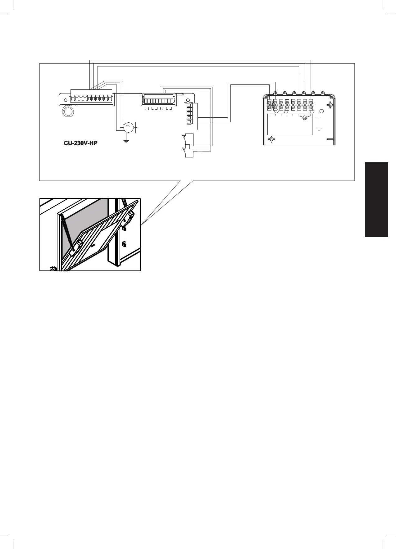
Zweimotorige Installation (bis 16 m
2
)
F1
L N
LAMP 230V
MOT1 OPEN
LAMP 230V
MOT1 COM
MOT1 CLOSE
FOTO+
2° CH
2° CH
GND
LAMP 24V 4W
M
INTERNAL MOTOR 230V 50HZ
MOT2 OPEN
MOT2 COM
MOT2 CLOSE
(N.C.) END STOP OPEN MOTOR
(N.C.) END STOP CLOSE MOTOR
(SALIENT 230V - WITH MAIN BOARD) (SALIENT 230V)
LAMP
LAMP+
COMMON
END STOP CLOSED
END STOP OPEN
CLOSED
COMMON
OPEN
CN1
12345678910
CN3
CN2
123
45
6
7
8
10 9
FC FA
FC FA
GND E1 + GND E1 +
1
2
3
4
5
MOT2 MOT1ENC2 ENC1

Related product manuals