EasyManua.ls Logo

Control Techniques Commander SK2401 - Page 21

Control Techniques Commander SK2401
60 pages
Print Icon
To Next Page IconTo Next Page
To Next Page IconTo Next Page
To Previous Page IconTo Previous Page
To Previous Page IconTo Previous Page
Loading...
Safety
Information
Product
Information
Mechanical
Installation
Electrical
Installation
Keypad and
Display
Parameters
Quick Start
Commissioning
Diagnostics Options Parameter List
UL Listing
Information
Commander SK Size 2 to 6 Getting Started Guide 21
Issue Number: 2 www.controltechniques.com
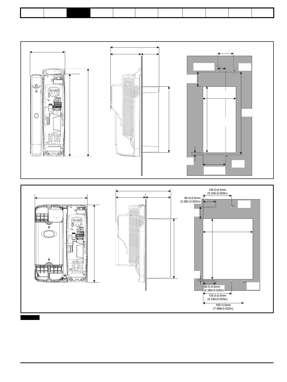
3.2.2 Through-panel mounting
When the drive is through-panel mounted, the main terminal cover(s) must be removed in order to provide access to the mounting holes. Once the
drive has been mounted, the terminal cover(s) can be replaced.
Figure 3-12 Through-panel mounting of a size 2 drive
Figure 3-13 Through-panel mounting of a size 3 drive
The control terminal cover must be removed on Commander SK sizes 2
and 3 to allow access to the mounting holes for through panel mounting.
368mm
(14.488in)
391mm
(15.394in)
155mm (6.102in)
219mm
(
8.622in
)
139mm (5.472in)
293mm
(11.535in)
9.3 0.5mm
±
(0.366 0.020in)
±
101.5 0.5mm
±
(3.996 0.020in)
±
64.6 0.5mm
±
(2.543 0.020in)
±
70 0.3mm
±
(2.756 0.012in)
±
148 0.5mm
±
(5.827 0.020in)
±
294 0.5mm
±
(11.575 0.020in)
±
368.0 1.0mm
±
(14.488 0.039in)
±
6.5mm
(0.256in)
6.5mm
(0.256in)
35.0 0.15mm
±
(1.378 0.006in)
±
80mm
(3.150in)
250mm(9.843in)
368mm
(14.488in)
140mm (5.512in) 120mm (4.724in)
260mm (10.236in)
283mm
(11.142in)
236 0.5mm
(9.291 0.020in)
±
±
287 0.5mm
(11.299 0.020in)
±
±
80.3mm
(0.315 0.012in)
±
±
56 0.5mm
(2.205 0.020in)
±
±
6.5mm
(0.256in)
6.5mm
(0.256in)
NOTE

Related product manuals