EasyManua.ls Logo

Control Techniques Commander SK4402 - Page 23

Control Techniques Commander SK4402
60 pages
Print Icon
To Next Page IconTo Next Page
To Next Page IconTo Next Page
To Previous Page IconTo Previous Page
To Previous Page IconTo Previous Page
Loading...
Safety
Information
Product
Information
Mechanical
Installation
Electrical
Installation
Keypad and
Display
Parameters
Quick Start
Commissioning
Diagnostics Options Parameter List
UL Listing
Information
Commander SK Size 2 to 6 Getting Started Guide 23
Issue Number: 2 www.controltechniques.com
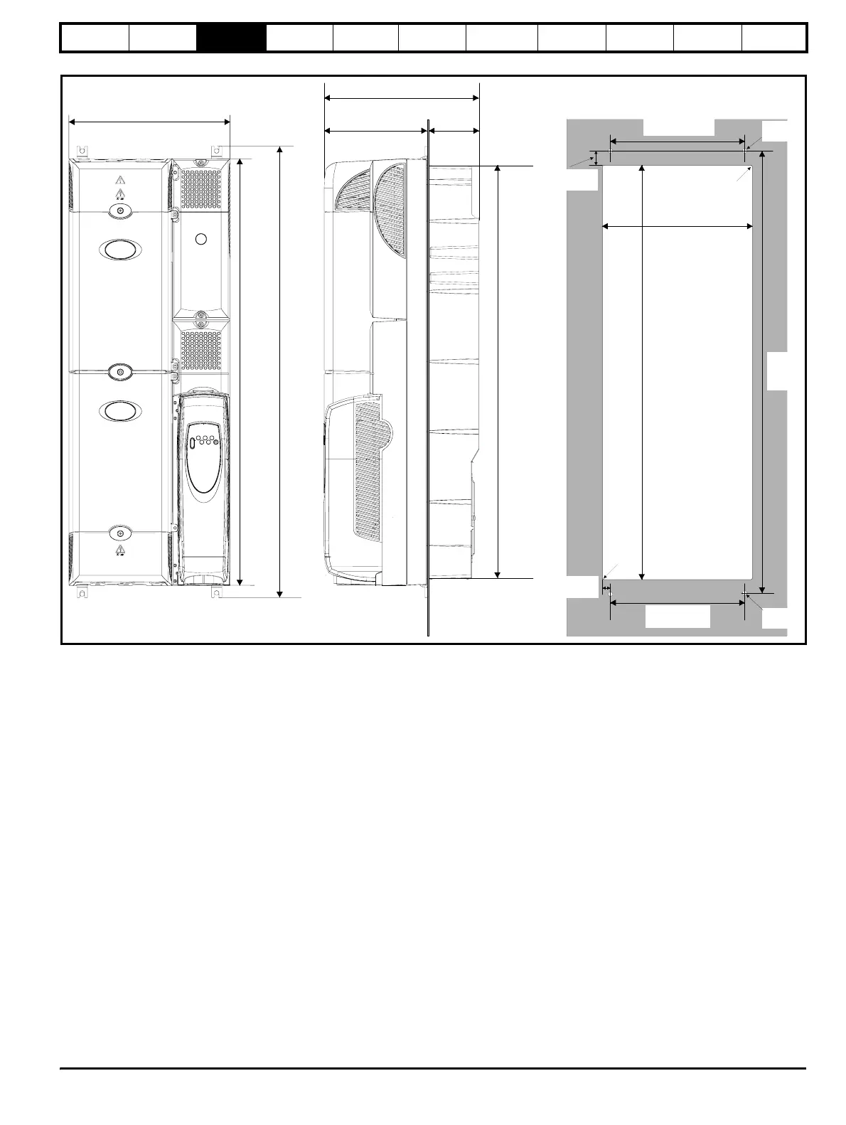
Figure 3-15 Through-panel mounting of a size 5 drive
When a Commander SK size 4 or 5 is through-panel mounted, the
grounding link bracket must be folded upwards. This is required to
provide a grounding point for the grounding bracket. See section
4.4.1 Grounding hardware on page 32 for details.
310mm (12.205in)
258.6 0.5mm
(10.181 0.020inm)
±
±
14.2 0.5mm
(0.559 0.020in)
±
±
286.0 0.5mm
(11.260 0.020in)
±
±
852.6
0.5mm
(33.567
0.020in
)
±
±
258.6 0.5mm
(10.181 0.020in)
±
±
26.7 0.5mm
(1.051 0.020in)
±
±
797.5 0.5mm
(31.398 0.020in)
±
±
794.5mm
(31.280in)
298mm (11.732in)
200mm (7.874in)
98mm
(3.858in)
820mm
(32.283in)
868mm
(34.173in)
8.5mm
(0.335in)
8.5mm
(0.335in)
R6.5mm
(0.256in)
R6.5mm
(0.256in)

Related product manuals