EasyManua.ls Logo

Control Techniques Commander SKA1200075 - Mechanical Installation

Control Techniques Commander SKA1200075
46 pages
Print Icon
To Next Page IconTo Next Page
To Next Page IconTo Next Page
To Previous Page IconTo Previous Page
To Previous Page IconTo Previous Page
Loading...
8 Commander SK Getting Started Guide
www.controltechniques.com Issue Number: 1
Safety
Information
Rating
Data
Mechanical
Installation
Electrical
Installation
Keypad
and Display
Parameters
Quick Start
Commissioning
Diagnostics Options
Parameter
List
UL Listing
Information
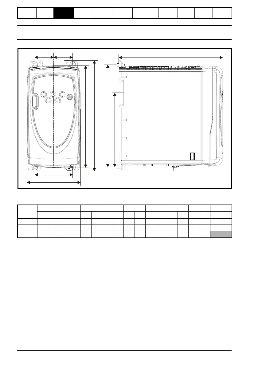
3 Mechanical Installation
Figure 3-1 Commander SK dimensions
Mounting holes: 4 x M4 holes
Table 3-1 Commander SK dimensions
On size A, the mounting feet are equal distance from the centre line of the drive.
On size B and C, the mounting feet are not an equal distance from the centre line of the
drive, hence the Ca and Cb dimensions.
*Size C is not DIN rail mountable.
ABF
C
D
E
G
C
a
C
b
Drive
size
ABCCaCbDEFG*
mm in mm in mm in mm in mm in mm in mm in mm in mm in
A 140 5.51 154 6.06 53 2.09 26.5 1.04 26.5 1.04 75 2.95 145 5.71 143 5.63 86.3 3.40
B 190 7.48 205 8.07 55 2.17 23.5 0.93 31.5 1.24 85 3.35 156 6.14 194 7.64 155.5 6.12
C 240 9.45 258 10.16 70.5 2.78 31 1.22 39.5 1.56 100 3.94 173 6.81 244 9.61

Related product manuals