EasyManua.ls Logo

Control Techniques Unidrive M100 - Page 21

Control Techniques Unidrive M100
42 pages
Print Icon
To Next Page IconTo Next Page
To Next Page IconTo Next Page
To Previous Page IconTo Previous Page
To Previous Page IconTo Previous Page
Loading...
Schritt-für-Schritt-Anleitung Unidrive M100/M101/M200/M201/M300 21
Ausgabenummer: 1
English Français Deutsch Italiano Español
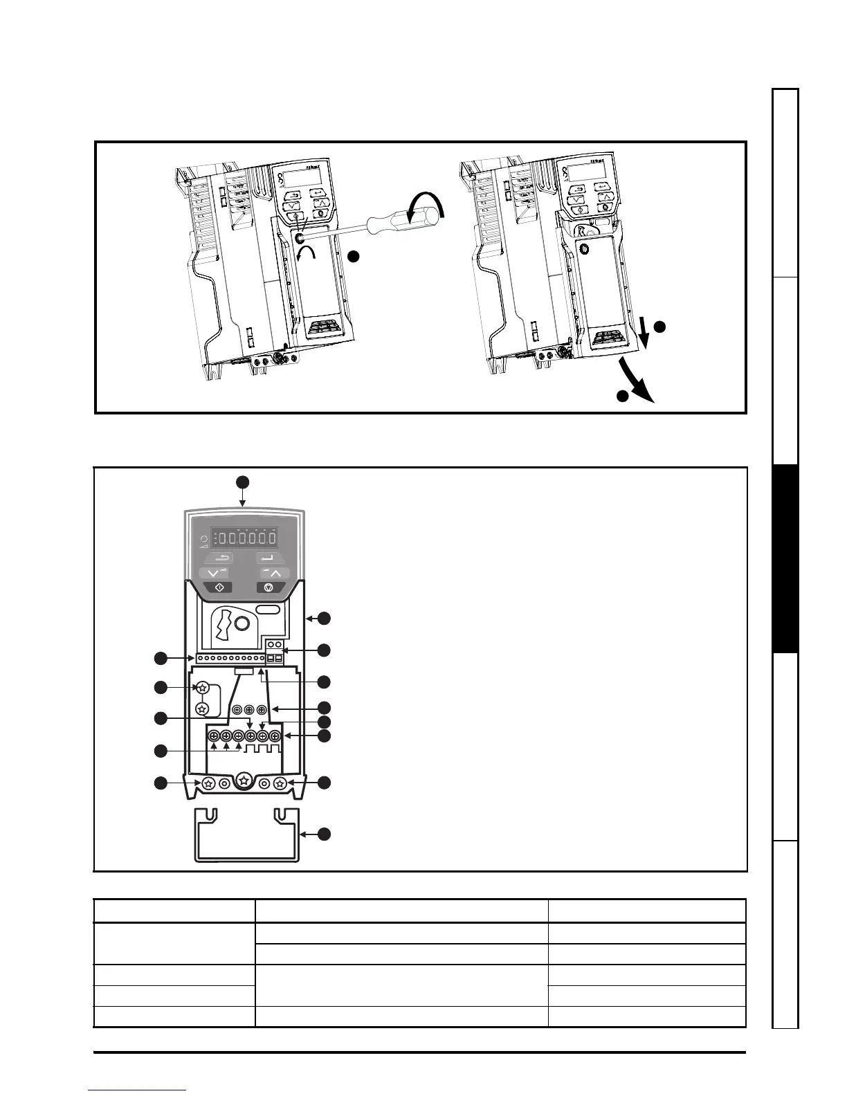
SCHRITT 6: Abdeckung abnehmen
1. Drehen Sie die Verriegelung der Klemmenabdeckung mit einem Schlitzschraubendreher um etwa 30° gegen
den Uhrzeigersinn.
2. Schieben Sie die Klemmenabdeckung nach unten.
3. Entfernen Sie die Klemmenabdeckung in der dargestellten Richtung.
SCHRITT 7: Identifikation der Umrichteranschlüsse
Abbildung 7-1 Anschlussdiagramm (Abbildung zeigt Baugröße 2)
Tabelle 7-1 Empfohlene Anzugsdrehmomente
Gerätebaugröße Klemmenblock Beschreibung Anzugsdrehmomente
Alle
Steueranschlussklemmen 0,2 Nm
Relaisklemmen 0,5 Nm
1
Klemmenanschlüsse - Leistung
0,5 Nm
2, 3, 4 1,4 Nm
Alle Erdungsanschlüsse 1,5 Nm
2
3
1
+
EMC
MOV
L1 L2 L3
U V W - + BR
2
1
3
12
10
7
5
11
11
9
8
6
4
13
Legende
1. Typenschild (an der Seite des Umrichters)
2. Identifikationsschild
3. Relaisanschlussklemmen
4. Steueranschlüsse
5. Anschlussklemmen für den Bremswiderstand
6. Schraube f. internes EMV-Filter*
7. DC Bus +
8. DC Bus -
9. Motoranschlüsse
10. Netzverbindung
11. Erdung
12. Safe Torque Off Klemmen (STO)**
13. Kabelhalterung, wird auf die Erdungsanschlüsse (11)
geschraubt
* Vor dem Entfernen der Schraube Abschnitt 4.7.2 des
Leistungsmodul-Installationshandbuchs lesen.
** Nur Unidrive M300.

Related product manuals