EasyManua.ls Logo

Control Techniques Unidrive M100 - Page 5

Control Techniques Unidrive M100
42 pages
Print Icon
To Next Page IconTo Next Page
To Next Page IconTo Next Page
To Previous Page IconTo Previous Page
To Previous Page IconTo Previous Page
Loading...
Unidrive M100/M101/M200/M201/M300 Step By Step Guide 5
Issue Number: 1
English
French German Italian Spanish
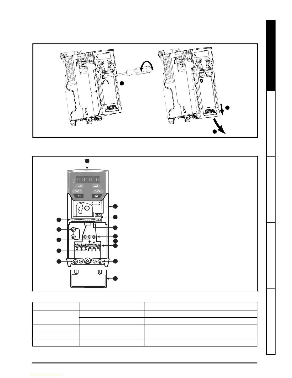
STEP 6: Remove the terminal cover
1. Using a flat bladed screwdriver, turn the terminal cover locking clip anti-clockwise by approximately 30°.
2. Slide the terminal cover down.
3. Remove terminal cover in direction shown.
STEP 7: Identify the features of the drive
Figure 7-1 Feature diagram (size 2 shown)
Table 7-1 Recommended torque settings
Model size Terminal block description Torque settings
All
Control terminals 0.2 N m (0.15 Ib ft)
Relay terminals 0.5 N m (0.37 Ib ft)
1
Power terminals
0.5 N m (0.37 Ib ft)
2, 3, 4 1.4 N m (1.03 Ib ft)
All Ground terminals 1.5 N m (1.10 Ib ft)
2
3
1
+
EMC
MOV
L1 L2 L3
U V W - + BR
2
1
3
12
10
7
5
11
11
9
8
6
4
13
Key
1. Rating label (on side of drive)
2. Identification label
3. Relay connections
4. Control connections
5. Braking terminal
6. Internal EMC filter screw*
7. DC bus +
8. DC bus -
9. Motor connections
10. AC supply connections
11. Ground connections
12. Safe Torque Off terminals (STO)**
13. Cable bracket to screw onto ground
terminals (11).
* Before removing the screw, refer to section 4.7.2
in the Power Installation Guide.
** Unidrive M300 only.

Related product manuals