EasyManua.ls Logo

Control Techniques Unidrive M200 - Page 37

Control Techniques Unidrive M200
52 pages
Print Icon
To Next Page IconTo Next Page
To Next Page IconTo Next Page
To Previous Page IconTo Previous Page
To Previous Page IconTo Previous Page
Loading...
Guida dettagliata a Unidrive M200/M201/M300 37
Versione numero: 1
English Français Deutsch
Italiano
Español
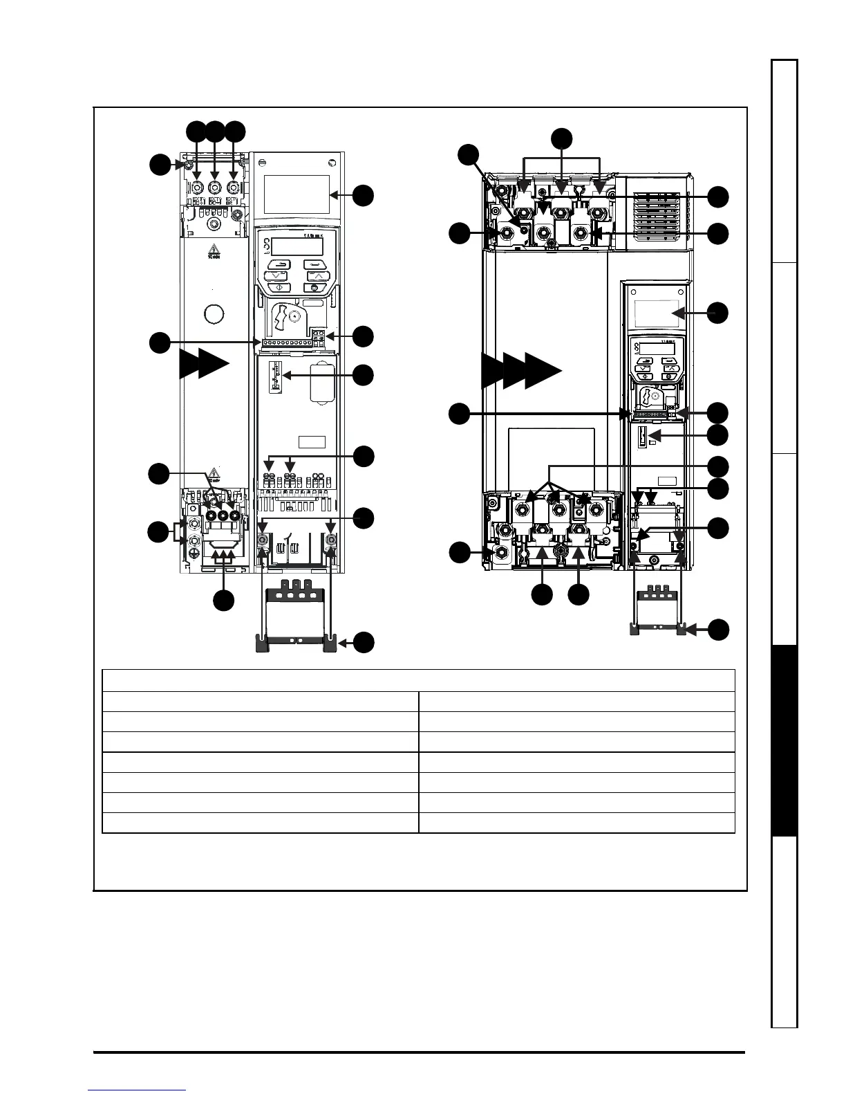
FASE 7: Identificare le parti costitutive dell'azionamento
Figura 7-1 Diagramma delle parti costitutive
PE
+DC -DC
U
V
W
L1 L2 L3
6
5
5
1
41 42
2
3
4
7
7
8
9
+DC
BRAKE
8
10
11
13
7 8
9
12
5
1
2
7
U V W
5
12
12
12 12
910
8
12
1
1
2
3
13
11
4
5
6
7
6
5
Legenda
1. Targhetta dei valori caratteristici 2. Collegamenti relè
3. Slot 1 modulo opzionale 4. Connessioni motore
5. Collegamenti di terra 6. Collegamenti alimentazione in c.a.
7. Collegamenti dei terminali di controllo 8. DC bus +
9. DC Bus - 10. Terminale di frenatura
11. Da staffa cavi a terminali di terra 12. Vite di fissaggio filtro EMC interno*
13. Terminali Safe Torque Off (STO)**
* Prima di rimuovere la vite, fare riferimento al Capitolo 4 della Guida ai collegamenti elettrici.
** Solo Unidrive M300.

Related product manuals