EasyManua.ls Logo

Cornelius IAC322 - Ice Maker Wiring Diagrams

Cornelius IAC322
66 pages
Print Icon
To Next Page IconTo Next Page
To Next Page IconTo Next Page
To Previous Page IconTo Previous Page
To Previous Page IconTo Previous Page
Loading...
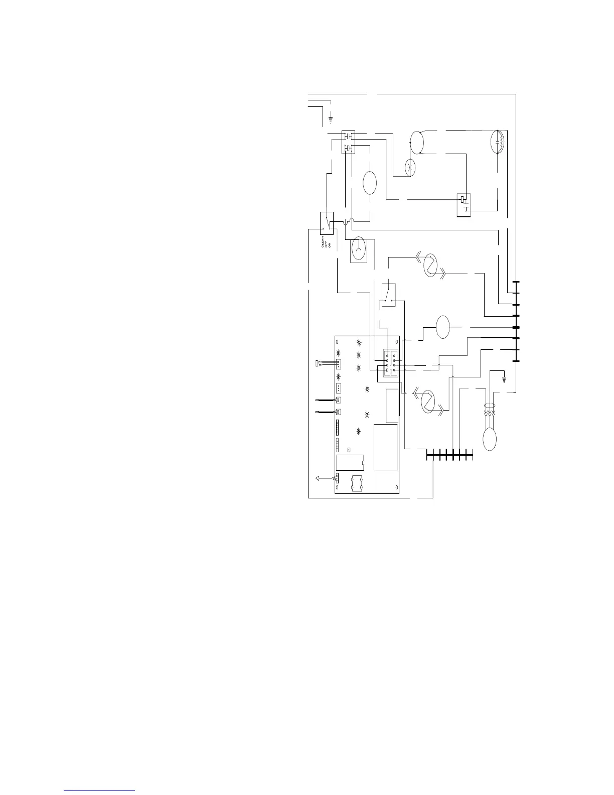
52
START
OR
CAPACITOR
COMPRESSOR
WH
WH
WH
2
RD
YL
R
S
C
COMPRESSOR
OVERLOAD
EXTERNAL
1
WH
5
BK
FAN MOTOR
CONDENSER
(A/C ONLY)
WH
BL
WATER DUMP
M
VALVE
START RELAY
POTENTIAL
115 VAC
243-292 mfd
WH
M
WH
HOT GAS
SOLENOID
WATER PUMP
CORD
PUMP
WH
BR
M
BK
WH
1
BK
MANUAL RESET
2
3
7
3
5
1
4
2
6
8
BK
BL
CO
450 PSIG
BR
D-15
GR
GR
GR
D-14
D-12
Valve
Dump
Water
Pump
Water
Relay
HIGH PRESSURE
YL
CONDENSATION
FAN (W/C ONLY)
BR
BK
BK
GR
UNIT
3
BR
2
1
YL
YL
S
N
RH Evap.
Switch
BL
SWITCH
CONTACTOR
BL
RH Evap.
D-13
RD
115V
Switch
Selector
Voltage
230V
Fan
Valve
Error
RD
Thickness Pot.
Adjustable Ice
GR
GR
D-11
D-6
D-5
Harvest
Manual
Switch
Transformer
Condenser
Hot Gas
Plug
Test
Sensor
Unit
To Stacked
See note 1
Suction Line
Sensor
Condenser
(White Lead)
(Brown Lead)
Plug
(if required)
Plug
Stacking
Processor
Micro
Cable
Suction
LH Evap.
Condenser
Options
Plug
Plug
IAC 322 & IWC 322
IAC 330 & IWC 330
D-10
CONTROL(W/C ONLY)
COMPRESSOR
SWITCH
WATER DUMP
BK
BL
BL
NOTE 1: CONDENSER SENSOR USED ONLY ON A/C UNITS.
1.8K ohm RESISTOR USED ONLY ON W/C UNITS.

Related product manuals