EasyManua.ls Logo

Cornelius IAC322 - Page 59

Cornelius IAC322
66 pages
Print Icon
To Next Page IconTo Next Page
To Next Page IconTo Next Page
To Previous Page IconTo Previous Page
To Previous Page IconTo Previous Page
Loading...
56
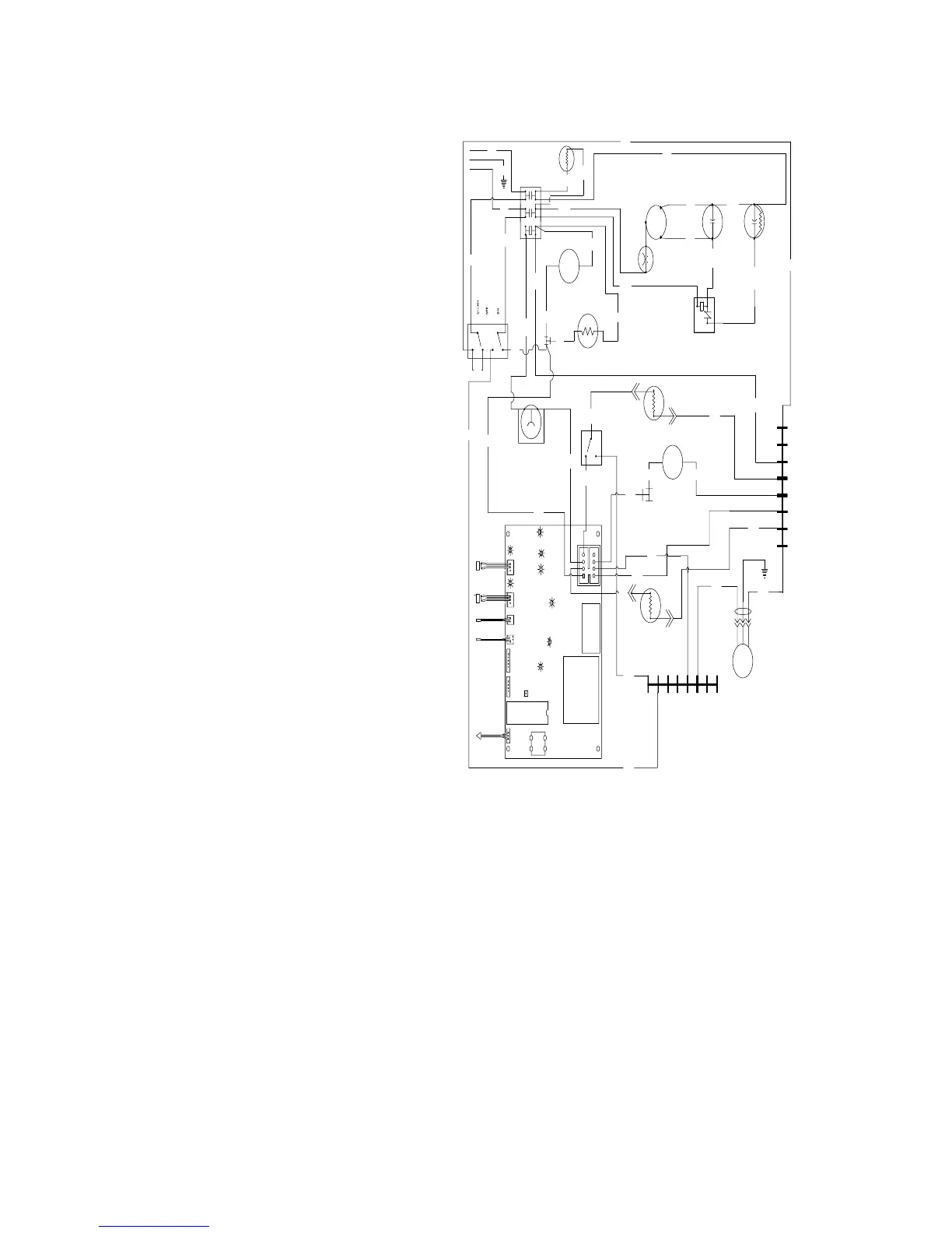
RD
330 VAC
CAPACITOR
START
OR
COMPRESSOR
189-227 mfd
RD
WH
RUN
YL
RD
YL
CAPACITOR
RD
R
S
C
COMPRESSOR
COMPRESSOR
OVERLOAD
EXTERNAL
2
WH
1
5
WH
M
BK
BL
WATER DUMP
FAN MOTOR
VALVE
START RELAY
POTENTIAL
CONDENSOR
(A/C ONLY)
COMPRESSOR
RD
440 VAC
40 mfd
WH
M
PUMP
WH
RD
HOT GAS
SOLENOID
WATER PUMP
CORD
BK
BK
SOLENOID
LIQUID LINE
BR
RD
M
RD
(R/C ONLY)
CONDENSATION
BK
BK
2
3
YL
8
6
5
7
1
BK
BK
BL
CO
GR
GR
BR
D-14
Water
Dump
Relay
Valve
CRANKCASE HEATER
FAN (W/C & R/C)
RD
GR
BK
BK
SWITCH
UNIT
RD
BR
RD
YL
D-13
BR
S
N
Switch
RH Evap.
BL
CONTACTOR
CONTROL(W/C & R/C)
HIGH PRESSURE
BL
MANUAL RESET
450 PSIG
RH Evap.
D-15
RD
21
230V
Switch
Selector
Voltage
115V
Hot Gas
Valve
Fan
D-6
GR
GR
D-12
GR
RD
Error
Thickness Pot.
Adjustable Ice
Pump
D-11
D-5
Switch
Harvest
Manual
Condenser
Transformer
YL
Plug
Plug
Plug
Test
Plug
S
N
Switch
Sensor
See note 1
LH Evap.
Suction Line
(Brown
Lead)
(White
Lead)
Cable
Plug
Unit
(if required)
To Stacked
Condenser Sensor
Micro
Stacking
Processor
Suction
Options
LH Evap.
Condenser
D-10
Water
43
SWITCH
WATER DUMP
BK
BR
BL
BL
RD
NOTE 1: CONDENSER SENSOR USED ONLY ON A/C UNITS.
1.8K ohm RESISTER USED ONLY ON W/C & R/C UNITS.
(A/C & R/C ONLY)
IAC 1448, IWC 1448 & IRC 1448

Related product manuals