EasyManua.ls Logo

Cornelius IMD300-15A - Page 8

Cornelius IMD300-15A
30 pages
Print Icon
To Next Page IconTo Next Page
To Next Page IconTo Next Page
To Previous Page IconTo Previous Page
To Previous Page IconTo Previous Page
Loading...
Countertop Icemaker IMD Series Installation Manual
Publication Number: 638085277INS - 4 - © 2004-2012, IMI Cornelius Inc.
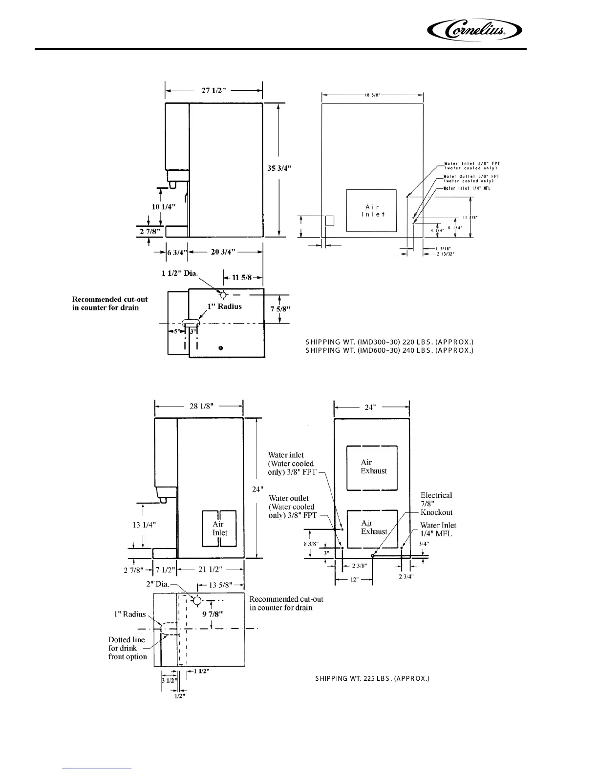
Figure 2
4.98”
0.37”
. Dimension Drawings (30 lbs.) IMD 300-30 and IMD 600-30
Figure 3. Dimension Drawings (90 lbs.) IMD 600-90

Related product manuals