EasyManua.ls Logo

Cornelius IMD300-15A - General Information; Specification Chart

Cornelius IMD300-15A
30 pages
Print Icon
To Next Page IconTo Next Page
To Next Page IconTo Next Page
To Previous Page IconTo Previous Page
To Previous Page IconTo Previous Page
Loading...
Countertop Icemaker IMD Series Installation Manual
© 2004-2012, IMI Cornelius Inc. - 3 - Publication Number: 638085277INS
GENERAL INFORMATION
Models
Condensing
Un
it
VAC Hz Ph
Comp
RLA
Fan
Am
ps
Grmtr
Amps
Refrigerant
Circuit
Fuse
Oz. Type
IMD300-15A Air Cooled 115 60 1 6 0.82 2 12 R134a 15
IMD302-15A Air Cooled 220/240 50 1 3 .5 1.6 12 R134a 15
IMD300-30A Air Cooled 115 60 1 6.7 1.1 2 25 R404A 20
IMD300-30W Water Cooled 115 60 1 10.1 N/A 2 13 R404A 20
IMD301-30A Air Cooled 208/230 60 1 5.7 1 1.6 28 R404A 20
IMD301-30W Water Cooled 208/230 60 1 5.7 N/A 1.6 13 R404A 20
IMD302-30A Air Cooled 220/240 50 1 5.3 0.5 1.6 28 R404A 20
IMD302-30W Water Cooled 220/240 50 1 5.3 N/A 1.6 13 R404A 20
IMD600-30A Air Cooled 115 60 1 11.5 1.1 2 25 R404A 30
IMD600-30W Water Cooled 115 60 1 12 N/A 2 14 R404A 20
IMD601-30A Air Cooled 208/230 60 1 7.7 1 1.6 28 R404A 20
IMD601-30W Water Cooled 208/230 60 1 7.7 N/A 1.6 14 R404A 20
IMD602-30W Water Cooled 220/240 50 1 8.2 N/A 1.6 14 R404A 20
IMD600-90A Air Cooled 115 60 1 14.6 1.6 2 20 R404A 35
IMD600-90W Water Cooled 115 60 1 12 N/A 2 14 R404A 20
IMD601-90A Air Cooled 208/230 60 1 7.7 1 1.6 24 R404A 20
IMD601-90W Water Cooled 208/230 60 1 7.7 N/A 1.6 14 R404A 20
IMD602-90A Air Cooled 220/240 50 1 8.2 0.5 1.6 24 R404A 20
IMD602-90W Water Cooled 220/240 50 1 8.2 N/A 1.6 14 R404A 20
SPECIFICATION CHART
NOTE: For Units Not Listed in Above Chart, Refer to Nameplate or contact Factory Service.
SHIPPINGWT.189LBS.(APPROX.)
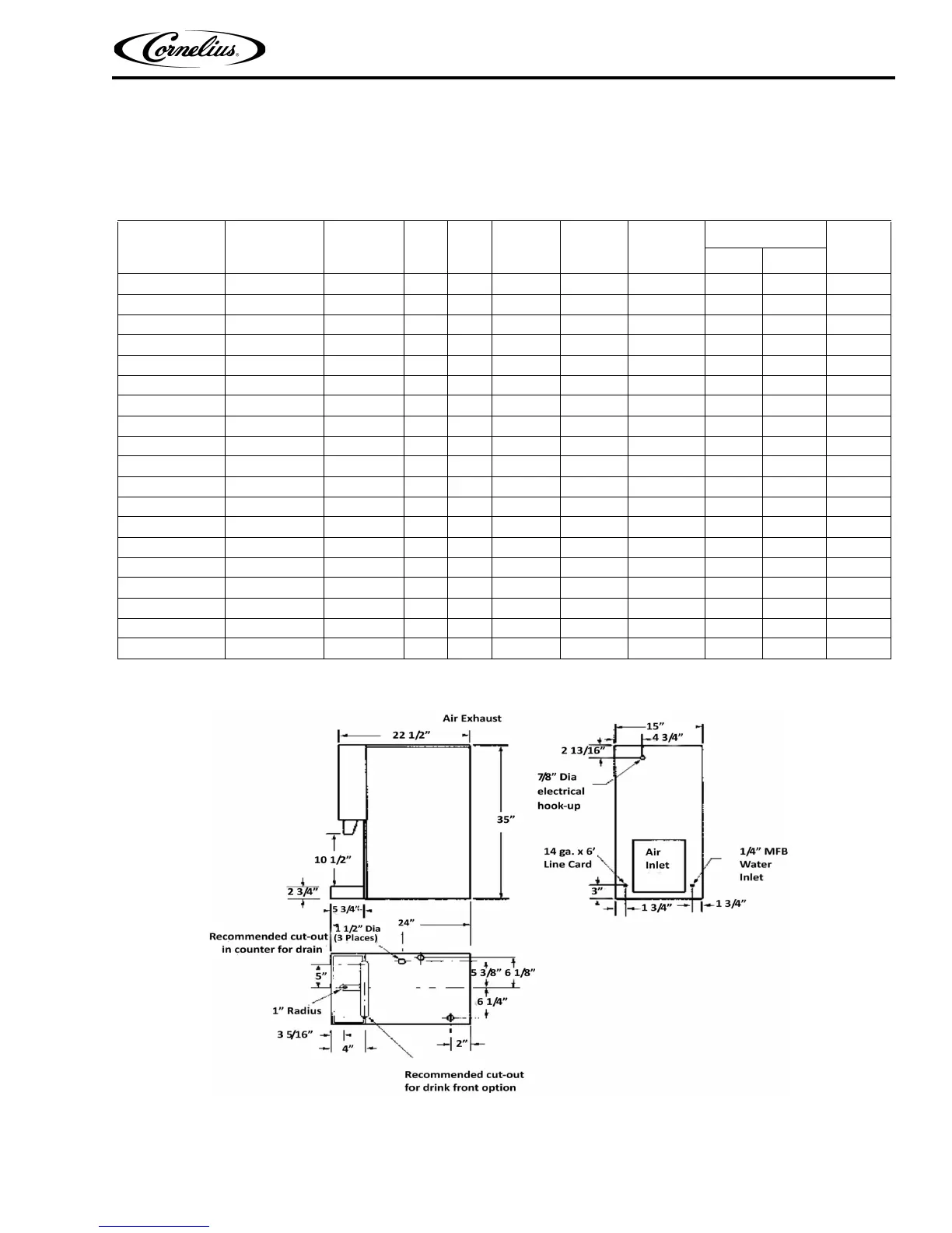
Figure 1. Dimension Drawing (15 lb.) IMD 300-15

Related product manuals