EasyManua.ls Logo

Craftsman 580.326310 - Technical Diagrams and Parts; Electrical Schematics

Craftsman 580.326310
60 pages
Print Icon
To Next Page IconTo Next Page
To Next Page IconTo Next Page
To Previous Page IconTo Previous Page
To Previous Page IconTo Previous Page
Loading...
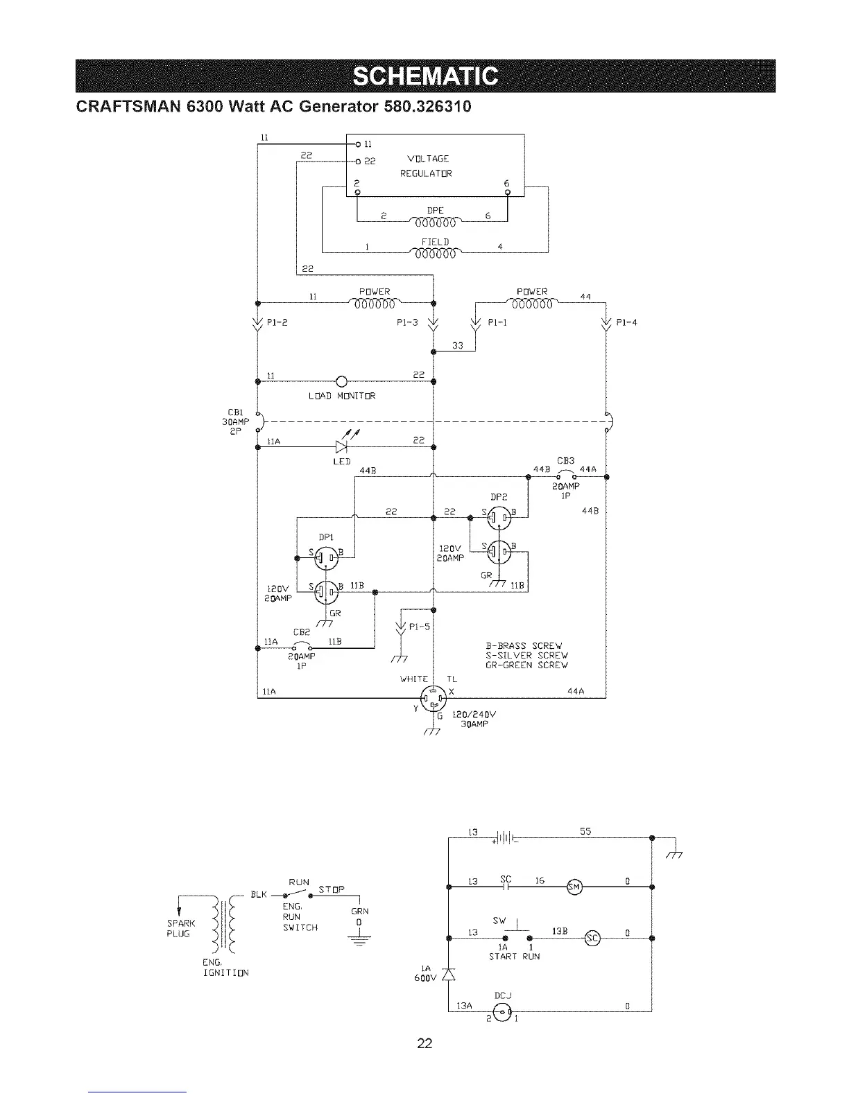
CRAFTSMAN 6300 Watt AC Generator 580.326310
CBI
30AMP
2P
VOLTAGE
REGULATOR 6 L
22
PI-2
POWER
Pl-3
0 22
LOAD MONITOR
X,X 22
IIA [_
LED
44I_
I DPI i 22
12BV B
20AMP CO2 MR I _
20AMP
IP
IIA
CB3
44B _-_ 44A
20AMP
DP2 IP
22 44B
12OV
_OAHP
B-BRASS SCREW
S-SILVER SCREW
GR-GREEN SCREW
TLWHITE
X 44A
3 120/240V
30AMP
P]-4
__
SPARK
PLUG
RUN
BLK __
1 _ ENG' GRN
RUN 0
SWITCH
ENG,
IGNITION
-_+qilL 55
IA
600V
sw i_
13 i
iA 1
START RUN
DCJ
22

Related product manuals