EasyManua.ls Logo

Cub Cadet 7530 - Tires, Lubrication, and Routine Maintenance

Cub Cadet 7530
126 pages
Print Icon
To Next Page IconTo Next Page
To Next Page IconTo Next Page
To Previous Page IconTo Previous Page
To Previous Page IconTo Previous Page
Loading...
FIELD OPERATION
57
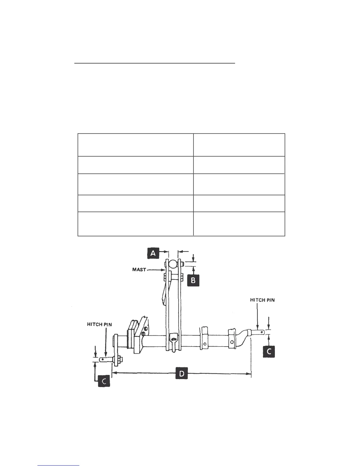
THREE POINT HITCH SYSTEM
The three point hitch system gives position control and draft control (If
equipped) of implements. This tractor is equipped with a category I hitch.
The three-point hitch dimensions are shown in the following table.
Implement Identification
Dimensions
A – Gap in top of implement mast
B – Diameter of holes in top of
Implement mast
C – Diameter of hitch pins
D – Lower Hitch Pin
Inner Shoulder Spread
Cat I
Implement
44.5 mm (1-3/4 inch)
19.1 mm (3/4 inch)
22.2 mm (7/8 inch)
682.6 mm (26-7/8 inch)

Other manuals for Cub Cadet 7530

Related product manuals