EasyManua.ls Logo

Culligan Smart Controller HE DF 12 - Smart Controller Circuit Board Layout

Culligan Smart Controller HE DF 12
71 pages
Print Icon
To Next Page IconTo Next Page
To Next Page IconTo Next Page
To Previous Page IconTo Previous Page
To Previous Page IconTo Previous Page
Loading...
Smart Controller Circuit Board Layout 23
Cat. No. 01024514
Smart Controller Circuit Board Layout
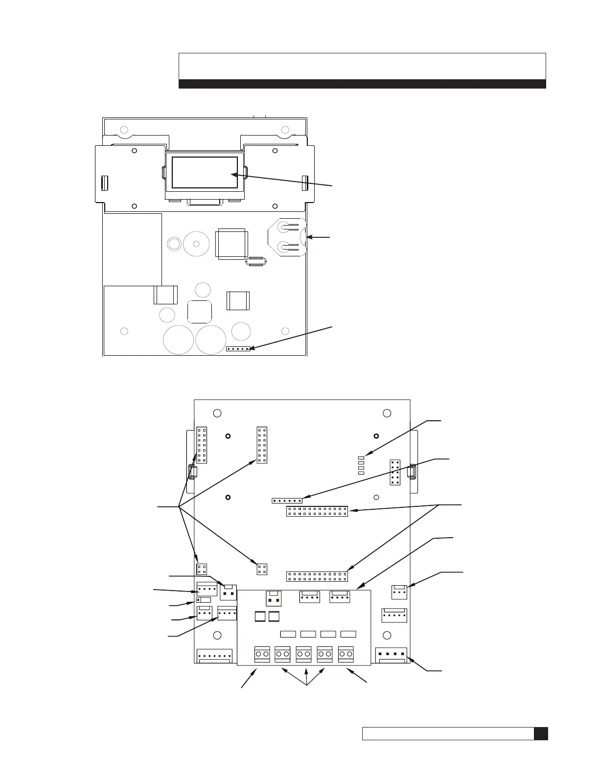
Smart Controller Circuit Board Layout–Front
Figure 27. Smart Controller circuit board layout, front view.
Smart Controller Circuit Board Layout–Back
POSITION
DC
MOTOR
FLOW
METER
RS485
BRINE
TANK
J22
2.5v
24v
AQUA SENSOR
AUX OUT4
AUX OUT3
AUX OUT2
AUX OUT1AUX INPUT
Figure 28. Smart Controller circuit board layout, rear view.
Keypad connector
Battery
CR2032 (Postitive Side Up)
Pull protective tab before activating
power to activate the battery
OLED Display
Optional AUX 5 Relay
Board Connection
Data Port PLC Output
RF Board Connection
(for remote)
Optional Auxilary Board
Optional AUX 6
Power Cable
(from transformer)
Optional Blocking Valve Connection
Optional Programmable
Outputs
Optional External regeneration signal
connection or external alarm
Flow Meter Cable
Optional Communication
Cable
Multiple Unit Jumper
Motor Position Cable
Motor Connection
Optional Modem
Connections

Related product manuals