EasyManua.ls Logo

Culligan Smart Controller HE DF 12 - Page 47

Culligan Smart Controller HE DF 12
71 pages
Print Icon
To Next Page IconTo Next Page
To Next Page IconTo Next Page
To Previous Page IconTo Previous Page
To Previous Page IconTo Previous Page
Loading...
Installing Accessories 43
Cat. No. 01024514
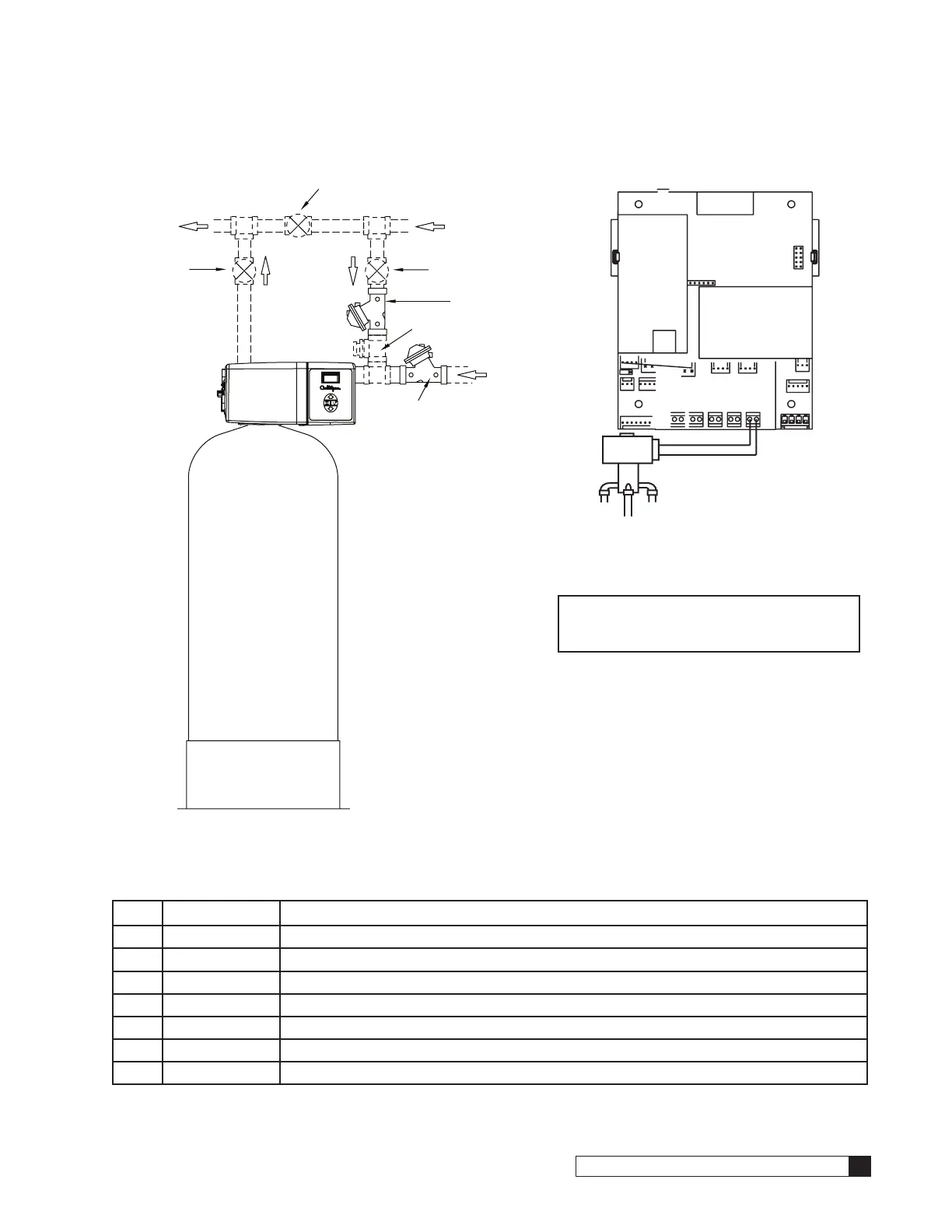
Separate Source
Figure 52. HE 1.5 Separate Source Piping
RJ11
PHONE
MODEM
BOARD
BASE BOARD
RF BOARD
AUXILARY BOARD
Figure 53. HE 1.5 Separate Source
Wiring
NOTE If using Aux Out 4 for external
blocking, use the Aux 5 relay for
separate source.
Table 6. Parts Required for Separate Source
Qty Part Number Description
1 01025234 Bracket for external blocking valve
1 01019594 Valve, Solenoid, 3-Way, 1/8”, 24V, UO, SS
1 00445981 Valve, Dia, Noryl, 1-1/2”NO/SAO with adapters
1 01004169 Valve, Diaphragm Noryl, 1-1/2”Normally Closed
1 01002940 Connector Kit, 1-1/2”/2” Valve, 2PK
1 00402447 Adapter Kit, PVC, 1-1/2”Male Slip, 2PK
1 01020748 Circuit Board, GBE Aux
Bypass Valve (Normally Closed)
Filter Water
Outlet
Manual
Outlet Valve
Untreated Water
Inlet
Manual Inlet Valve
Inlet Valve
(Normally Open)
Regeneration Valve
(Normally Closed)
Vacuum Breaker
2
31
FeedValves
Drain
24 V

Related product manuals