EasyManua.ls Logo

Culligan Smart Controller HE DF 12 - Page 58

Culligan Smart Controller HE DF 12
71 pages
Print Icon
To Next Page IconTo Next Page
To Next Page IconTo Next Page
To Previous Page IconTo Previous Page
To Previous Page IconTo Previous Page
Loading...
54 Culligan® High Efficiency 1.5 Water Filter
54 Cat. No. 01024514
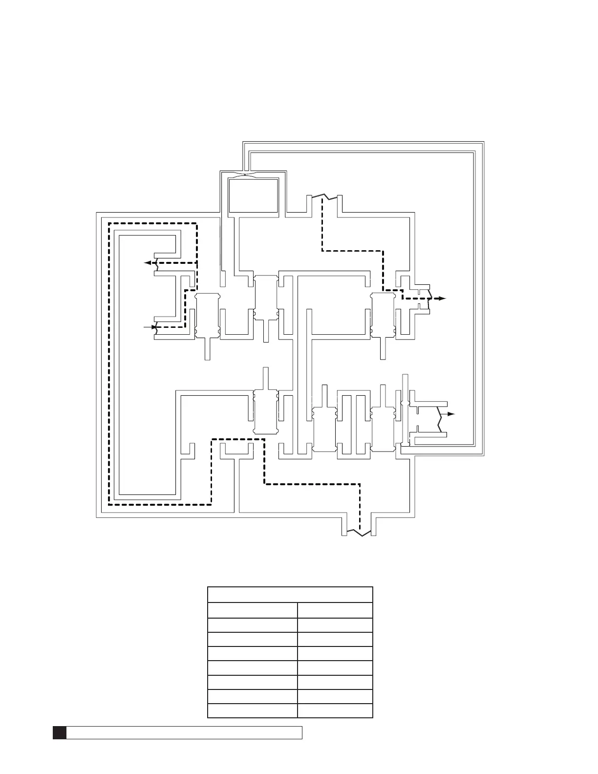
Backwash Flow
Raw water is directed down the center of the manifold, up through the resin, out the top of the tank to drain. The water to
drain should be hard.
P1
P2
P3
Raw
Water
Bypassed
Water
To
Drain
To
Brine
Tank
Tank
Inlet
Tank
Outlet
Brine
Piston
P6
P4
P5
PR
A
B
CD
E
FGH
Figure 62. Backwash flow.
Backwash
Piston Position
P1–Inlet Closed
P2/3–Outlet Open
P4–Backwash Open
P5–Rinse Closed
P6–Bypass Piston Open
Brine Piston Closed
PR–Refill Piston Closed

Related product manuals