EasyManua.ls Logo

Curtis PMC 1204 Series - Page 12

Curtis PMC 1204 Series
56 pages
To Next Page IconTo Next Page
To Next Page IconTo Next Page
To Previous Page IconTo Previous Page
To Previous Page IconTo Previous Page
Loading...
Curtis PMC 1204X/1205X/1209/1221 Manual
6
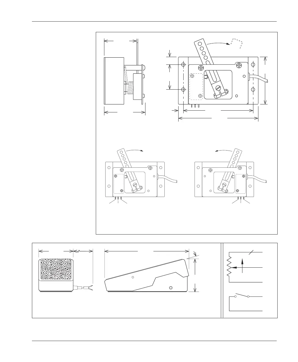
Fig. 4 Mounting
dimensions,
Curtis PMC potboxes
PB-5, -6, -9, and -10.
Fig. 5 Curtis PMC footpedal FP-2.
HARDWARE INSTALLATION
10 (0.38)
32
(1.25)
6
(0.25)
89 (3.5)
60
(2.37)
102 (4.0)
45
°
Dimensions in millimeters and (inches)
RIGHT-HAND OPERATION LEFT-HAND OPERATION
COM. N.O. N.C.
N.C. N.O. COM.
WITH MICROSWITCH: PB-6
WITHOUT MICROSWITCH: PB-5
WITH MICROSWITCH: PB-9
WITHOUT MICROSWITCH: PB-10
42 (1.65)
52 (2.06)
Dimensions in millimeters and (inches)
15
°
244 (9.6)
112 (4.4)
112
(4.4)
1.8 m
(6 ft)
WIRING:
BLACK
= throttle input
BLUE
= switch, common (Note: The green wire is not used with
WHITE
= throttle input
ORANGE
= switch, normally open 1204X/1205X/1209/1221 controllers)
BLK
ON
GRN
(not used)
WHT
ORG
BLU
COM.N.O.

Related product manuals