EasyManua.ls Logo

DAB GRINDER Series - Page 154

DAB GRINDER Series
292 pages
Print Icon
To Next Page IconTo Next Page
To Next Page IconTo Next Page
To Previous Page IconTo Previous Page
To Previous Page IconTo Previous Page
Loading...
GR
154


7#"! *&"&&('&8
#2 &"8$2&8 "( & ! *&2(( (8 +&
#"*$2&&
>&&'&"&$&"("&"#3
&##&8
&"& &3"#+(&2&" 2#&&'. "&+ #+# &"
'&"("$  #"+#$ *"  & $&"((8 #+"&&
'#"#"3"*$&"(&"(#2"(."
&"(+8
) "&'&#+# &" && &"& & #"(+ #2 &"
&2&("&"""
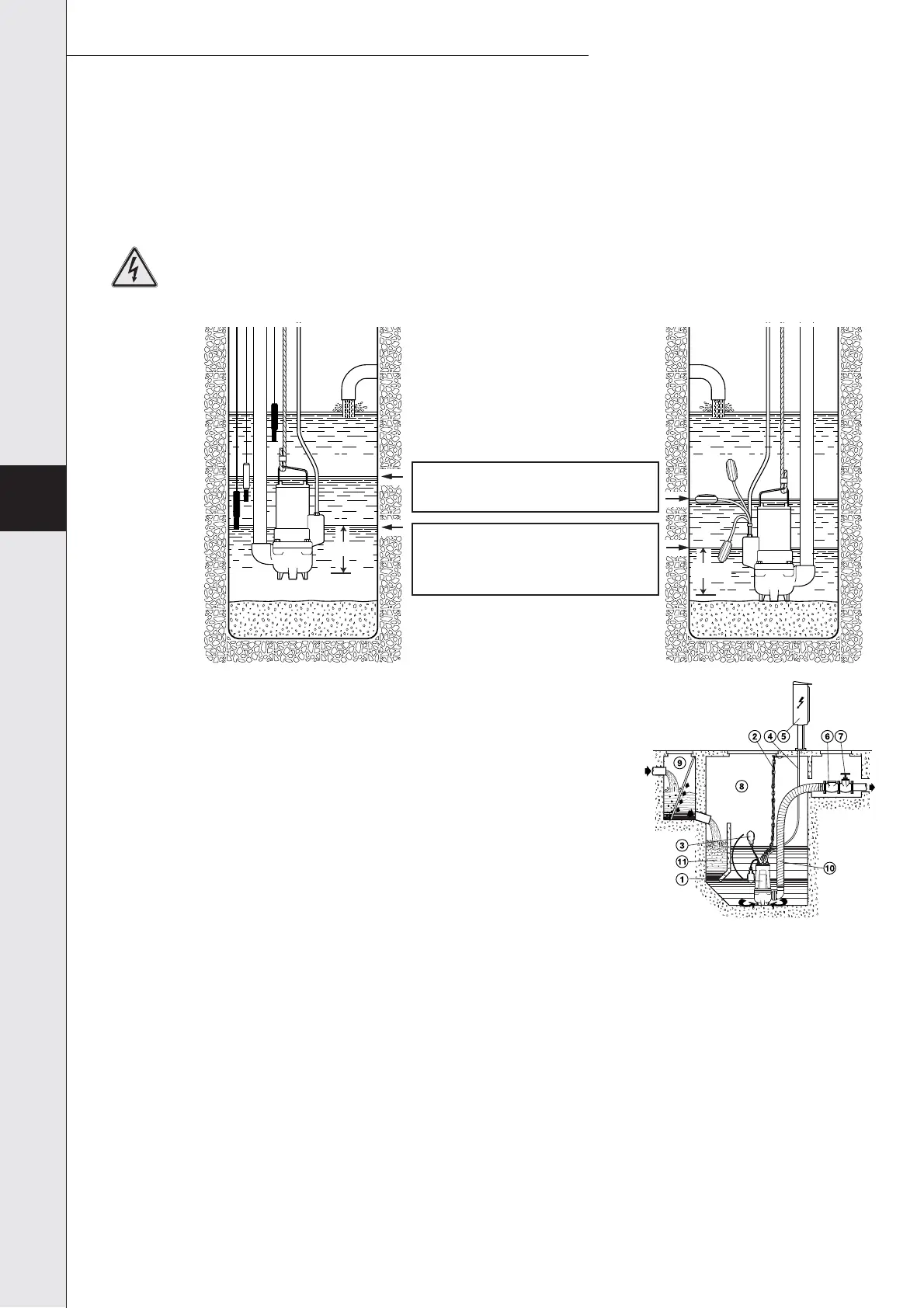
5.2.1 
(&'& *$28$&'.B  '&" 2*
2&
#2&'&"&"(&""(&&
-*"#"$& #&"8$#"&$&&"*(+"& #"
&2#'"+"( 2&39 #"  & &
&$&&"
$+(22&(#'*"(# 
$$& .(
> &(*2 !!&&$ (&8&$#+# 
(""."    #2& # &    +
&2'#&"&$
8$8
;&#""*$#+#&&&"#".+&&8&
88 &""" #"+"( #"('9"(
#2&" # (#+9"&  &9"(
&#"" &#2 &'!&+
"(#'3&"*2"
"." #2&&
&&"&&#"('9"&&"#(.+&"(&2*""$(&$3#+#
&"&&"#'8*"
""&"(&"(&&+&"&&#+#
#"!+#&#2&"((&2*""($&(+ &#"(39&&$3&
&"&&
9 &"8$&'.B !'"& (#2B " (+&'
&#"$#"(""&&'&&+#&&"(
5.2.2 
0"#".&$&&"#2&$3&&"&&""(.&
&#'&8
 &&&"+&$3&88$8"#&&"*"&3$
 0"#".&$&&" #(.+ &"(&"( &" #2&$3  & (&2& 9(3  #&

+$&'.+3& &8+#"3"*+  &" " #8&88$8"
+##2(&&2(&&&"*#"3"*+&"('&"&$3#"(
#"+&&"*"&3$5
+3&#&##2&&+'
 &&.+&8*&"#2&$3 &&$&&"!+$"&8
8$8"#&






 

Table of Contents

Related product manuals