EasyManua.ls Logo

Daikin BRC1C71 - Group Control

Daikin BRC1C71
92 pages
Print Icon
To Next Page IconTo Next Page
To Next Page IconTo Next Page
To Previous Page IconTo Previous Page
To Previous Page IconTo Previous Page
Loading...
Control Devices EDUS39-605
4 Controls
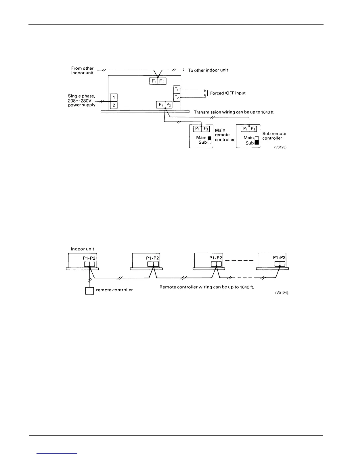
2.1.3 Two Remote Controllers
1 indoor unit is controlled by 2 remote controllers from 2 separate locations
This is a convenient system for operating an office indoor unit from the reception area, or an indoor unit from a local or
remote location.
Operation mode of the indoor unit is last command priority.
Remove the front panel of the remote controller and set the main/sub changeover switch on the PC board to MAIN
for the main remote controller, and to sub SUB for the sub remote controller.
Note:
The remote controller is equipped with a thermostat sensor. If the main and sub remote controllers are mounted in
separate rooms, set the main remote controller so that its thermostat sensor is not used so that it does not determine
the temperature for all rooms.
2.1.4 Group Control
Simultaneous control of up to 16 units with a single remote controller:
The following diagram illustrates a convenient system for simultaneous control of several indoor units on a wide, single
floor.
Wiring for remote controller group control has no polarity, therefore P
1
and P
2
can be switched.
All indoor units within the group have the same setting, and each indoor unit is controlled individually by its own built-
in thermostat.
Because automatic address is used, an address does not have to be set by remote controller for group control.
Note:
Only remote controller wiring is shown.

Related product manuals