EasyManua.ls Logo

Daikin FTK35BVMB - Piping Diagrams; Indoor Units

Daikin FTK35BVMB
201 pages
Print Icon
To Next Page IconTo Next Page
To Next Page IconTo Next Page
To Previous Page IconTo Previous Page
To Previous Page IconTo Previous Page
Loading...
Piping Diagrams SiBE04-302
180 Appendix
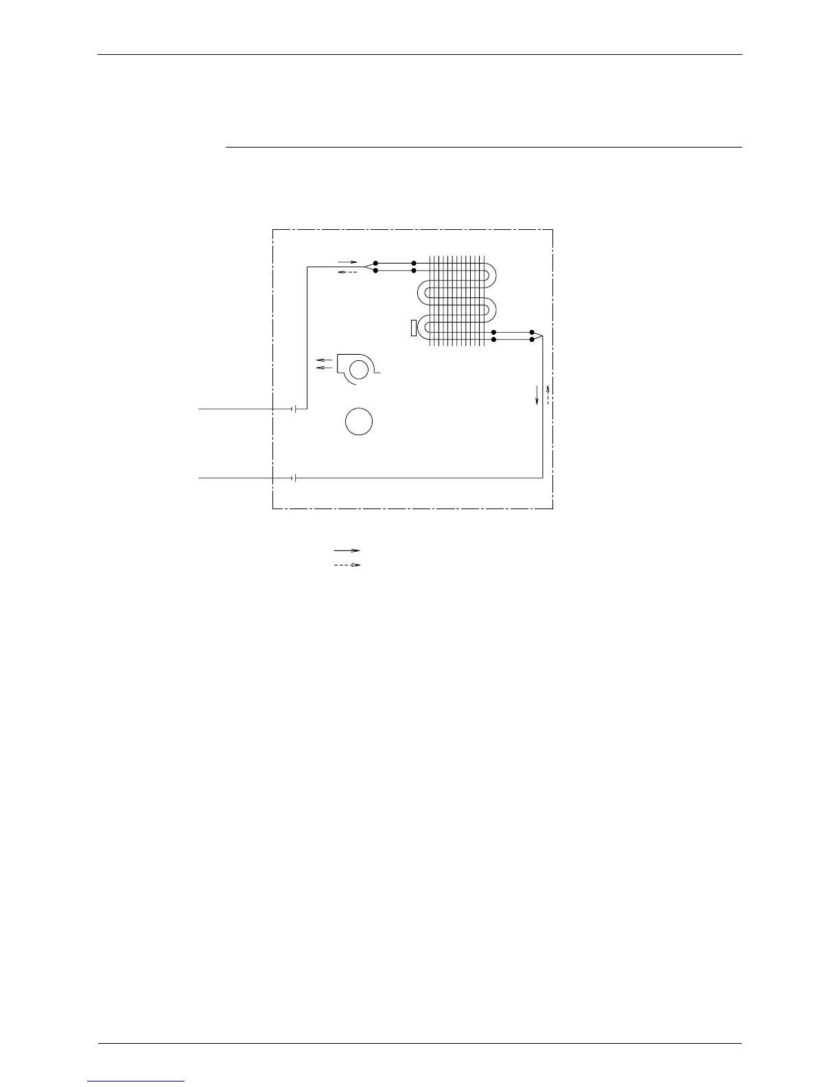
1. Piping Diagrams
1.1 Indoor Units
FTKS25 / 35BVMB, ATKS25 / 35BVMB, FTK25 / 35BVMB, ATK25 / 35BVMB, FTS20 / 25 / 35BVMB
FTXS25 / 35BVMB, ATXS25 / 35BVMB, FTX25 / 35BVMB, ATX25 / 35BVMB, FTYS20 / 25 / 35BVMB
FIELD PIPING
FIELD PIPING
(
6.4CuT
)
(
9.5CuT
)
7.9CuT
CROSS FLOW FAN
REFRIGERANT FLOW
FAN MOTOR
ON HEAT EXCH.
THERMISTOR
M
INDOOR UNIT
HEATING
COOLING
7.0CuT
6.4CuT
9.5CuT
HEAT EXCHANGER
6.4CuT
6.4CuT
4D033698A

Table of Contents

Other manuals for Daikin FTK35BVMB

Related product manuals