EasyManua.ls Logo

Daikin FTK35BVMB - Outdoor Units

Daikin FTK35BVMB
201 pages
Print Icon
To Next Page IconTo Next Page
To Next Page IconTo Next Page
To Previous Page IconTo Previous Page
To Previous Page IconTo Previous Page
Loading...
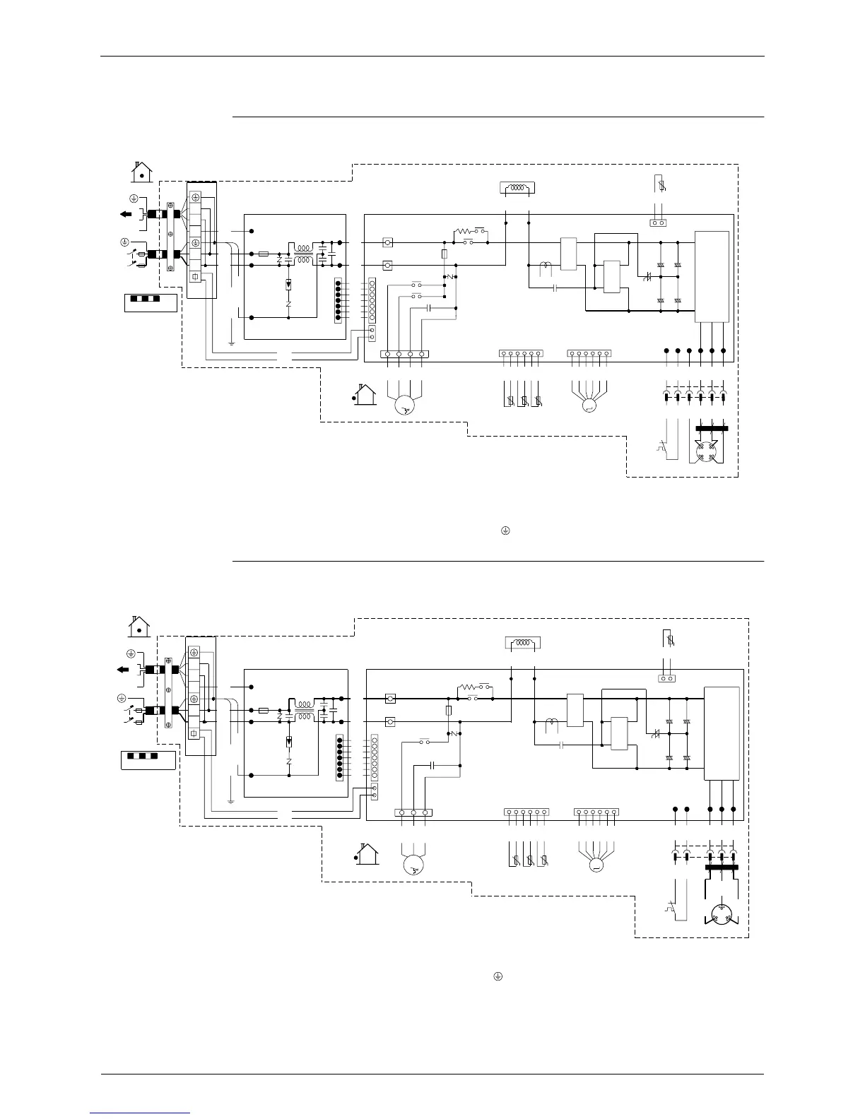
Wiring Diagrams SiBE04-302
184 Appendix
2.2 Outdoor Units
RKS25 / 35BVMB, ARKS25 / 35BVMB
RK25 / 35BVMB, ARK25 / 35BVMB, RS20 / 25 / 35BVMB
NOTE
N
L
1.
REFER TO THE NAMEPLATE FOR THE POWER REQUIREMENTS.
FIELD WIRING.
L : LIVE
X1M : TERMINAL STRIP
CT1 : CURRENT TRANSFORMER
L1 : COIL
PCB1 : PRINTED CIRCUIT BOARD
C12~C15 : CAPACITOR
L1R : REACTOR
M1C : COMPRESSOR MOTOR
M1F : FAN MOTOR
DB1, DB2 : DIODE BRIDGE
FU1, FU2 : FUSE
C9, C11
indoor
3
2
1
TFU
102
X1M
L
2
3
N
1
˚C
RED
BLK
WHT
GRN/YLW
GRN/YLW
HL1
HN1
S
E
FU2
20A
V2
YLW
YLW
PCB1
V3
SA1
L1
PCB2 : PRINTED CIRCUIT BOARD
N : NEUTRAL
SA1 : SURGE ARRESTER
Q1L : OVERLOAD PROTECTOR
HL3
,
HN3 : CONNECTOR
MRH
,
MRL
MRM10
,
MRM20 : MAGNETIC RELAY
S70
,
S90
,
S91
,
R1T
,
R2T
,
R3T
,
R4T: THERMISTOR
S10
,
S11
,
S20
,
S45
,
S10
7
1
HL2
HN2
WHT
YLW
BLU
ORG
ORG
ORG
ORG
ORG
ORG
outdoor
S45
S70
S11
7
1
2
1
HL3
HN3
1
M1F
BLK
3
MRH
1
ORG
M
~
5
WHT
C9
8
MRL
PCB2
3.15A
RED
FU1
V1
TFU : THERMAL FUSE
IC3 : TRIAC
Z1C : FERRITE CORE
TRM1 : TRANSISTOR MODULE
V1
,
V2
,
V3 : VARISTOR
Y1E : ELECTRONIC EXPANSION VALVE COIL
MRM10
MRM20
(
OUTDOOR
)
L1R
HR3
: PROTECTIVE EARTH
R1T
1
(
CONDENSER
)
BLK
ORG
t˚
BLK
R2T
RED
t˚
RED
HR4
(
DISCHARGE
)
ORG
R3T
BLE
6
t˚
CT1
BLE
S90
C11
~
~
DB1
+
-
1
ORG
RED
Y1E
M
YLW
BLK
WHT
6
~
~
DB2
GRY
+
-
S20
IC3
X30A
OL2
1
BLK
6
2
C12
C13
+
-
+
-
t˚
BLK
Q1L
R4T
BLK
S91
(
FIN
)
BLK
OL1
-
+
-
+
C15
C14
GRY GRY
N
BRN BRN
W
+
N
W
-
3D038018B
M1C
W
TRM1
BLU BLU
V
U
V
YLW
V
YLW
U
U
Z1C
REDRED
1
NOTE
N
L
1. REFER TO THE NAMEPLATE FOR THE POWER REQUIREMENTS.
FIELD
L : LIVE
X1M : TERMINAL STRIP
CT1 : CURRENT TRANSFORMER
L1 : COIL
PCB1 : PRINTED CIRCUIT BOARD
C12~C15 : CAPACITOR
L1R : REACTOR
M1C : COMPRESSOR MOTOR
M1F : FAN MOTOR
DB1
,
DB2 : DIODE BRIDGE
FU1
,
FU2 : FUSE
C9
,
C11
indoor
2
3
1
WIRING.
TFU
102˚C
X1M
L
3
2
N
1
RED
BLK
WHT
GRN/YLW
GRN/YLW
HL1
HN1
E
S
FU2
20A
V2
YLW
YLW
PCB1
V3
SA1
L1
PCB2 : PRINTED CIRCUIT BOARD
N : NEUTRAL
MRL
SA1 : SURGE ARRESTER
Q1L : OVERLOAD PROTECTOR
HL3
,
HN3 : CONNECTOR
MRM10
,
MRM20 : MAGNETIC RELAY
S70
,
S90
,
S91
,
R1T
,
R2T
,
R3T
,
R4T : THERMISTOR
S10
,
S11
,
S20
,
S45
,
S10
7
1
HL2
HN2
WHT
YLW
BLU
ORG
ORG
ORG
ORG
ORG
ORG
outdoor
S45
S11
7
1
2
1
S70
HL3
HN3
M1F
1
BLK
MRL
1
3
M
~
WHT
C9
6
PCB2
3.15A
RED
FU1
V1
Z1C : FERRITE CORE
IC3 : TRIAC
TFU : THERMAL FUSE
TRM1 : TRANSISTOR MODULE
V1
,
V2
,
V3 : VARISTOR
Y1E : ELECTRONIC EXPANSION VALVE COIL
MRM10
MRM20
(
OUTDOOR
)
L1R
HR3
: PROTECTIVE EARTH
R1T
1
(
CONDENSER
)
BLK
ORG
t˚
BLK
R2T
RED
t˚
RED
HR4
(
DISCHARGE
)
ORG
R3T
BLE
6
t˚
CT1
BLE
S90
C11
~
~
DB1
+
-
1
ORG
RED
Y1E
M
YLW
BLK
WHT
6
~
~
DB2
GRY
+
-
S20
IC3
X30A
OL2
1
BLK
6
2
C13
C12
+
-
+
-
t˚
BLK
Q1L
3D038019C
R4T
BLK
S91
(
FIN
)
BLK
OL1
-
+
+
-
C15
C14
GRY GRY
+
W
BLU
-
W
W
TRM1
BLU
V
M1C
V
V
YLW
YLW
U
U
Z1C
U
RED
1
RED

Table of Contents

Other manuals for Daikin FTK35BVMB

Related product manuals