EasyManua.ls Logo

Daikin FTK35BVMB - Wiring Diagrams; Indoor Units

Daikin FTK35BVMB
201 pages
Print Icon
To Next Page IconTo Next Page
To Next Page IconTo Next Page
To Previous Page IconTo Previous Page
To Previous Page IconTo Previous Page
Loading...
SiBE04-302 Wiring Diagrams
Appendix 183
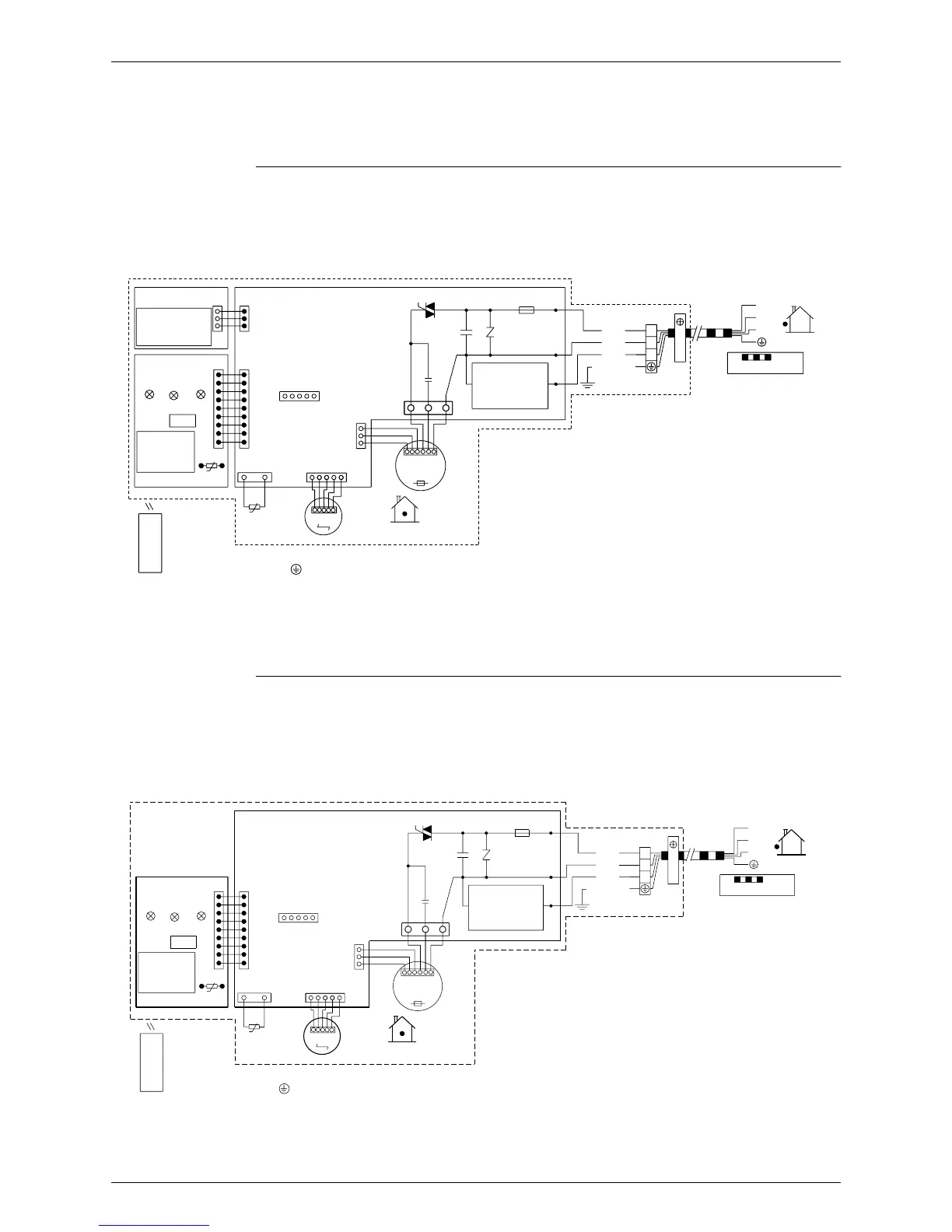
2. Wiring Diagrams
2.1 Indoor Units
FTKS25 / 35BVMB, ATKS25 / 35BVMB, FTK25 / 35BVMB, ATK25 / 35BVMB
FTXS25 / 35BVMB, ATXS25 / 35BVMB, FTX25 / 35BVMB, ATX25 / 35BVMB
FTS20 / 25 / 35BVMB
FTYS20 / 25 / 35BVMB
LED1
PCB2
PCB3
H1P
EYE SENSOR
INTELLIGENT-
RECEIVER
SIGNAL
CONTROLLER
LED2
H2P
S1W
WIRELESS
REMOTE
LED3
H3P
R1T
S27
t˚
S36 S35
S26
S32
R2T
t˚
S21
PCB1
(
Fu
C70 :
TERMINAL FOR
CENTRALIZED CONTROL
:
:
S6
FUSE
RUNNING CAPACITOR
PROTECTIVE EARTH
M
M1S
S7
indoor
)
S1
1~
t˚
M
M1F
C70
140˚C
TRANSMISSION
CIRCUIT
3.15A
Fu
S1W
M1F
X1M
M1S
H1P~H3P
S1~S36
PCB1~PCB3
R1T~R2T
H2
H3
H1
:
:
:
:
:
:
:
:
GRN
OPERATION SWITCH
TERMINAL STRIP
SWING MOTOR
THERMISTOR
FAN MOTOR
CONNECTOR
PRINTED CIRCUIT BOARD
PILOT LAMP
WHT
RED
BLK
/
YLW
X1M
2
3
1
NOTE THAT OPERATION WILL
THE MAIN POWER SUPPLY IS
TURNED OFF AND THEN BACK
RESTART AUTOMATICALLY IF
ON AGAIN.
CAUTION
FIELD WIRING.
2
3
1
3D033599A
outdoor
LED1
PCB2
H1P
RECEIVER
SIGNAL
CONTROLLER
LED2
H2P
S1W
REMOTE
WIRELESS
LED3
H3P
R1T
t˚
S27 S26
S32
R2T
t˚
S21
PCB1
(
CENTRALIZED CONTROL
)
FU : FUSE
C70 : RUNNING CAPACITOR
TERMINAL FOR
: PROTECTIVE EARTH
S6
M
M1S
S7
indoor
S1
S1
1~
t˚
M
M1F
C70
140˚C
TRANSMISSION
CIRCUIT
3.15A
Fu
S1~S32 : CONNECTOR
R1T~R2T : THERMISTOR
M1F : FAN MOTOR
M1S : SWING MOTOR
H1P~H3P : PILOT LAMP
X1M : TERMINAL STRIP
S1W : OPERATION SWITCH
PCB1~PCB2 : PRINTED CIRCUIT BOARD
H2
H3
H1
GRN
WHT
RED
BLK
/
YLW
X1M
2
3
1
NOTE THAT OPERATION WILL
THE MAIN POWER SUPPLY IS
TURNED OFF AND THEN BACK
RESTART AUTOMATICALLY IF
ON AGAIN.
CAUTION
FIELD
2
3
1
WIRING.
outdoor
3D038710

Table of Contents

Other manuals for Daikin FTK35BVMB

Related product manuals