EasyManua.ls Logo

Daikin FTXP-M9 - Outdoor Unit; 2 Mxm50 M9; 3 Mxm68 M, 3 Mxm68 N(9)

Daikin FTXP-M9
132 pages
Print Icon
To Next Page IconTo Next Page
To Next Page IconTo Next Page
To Previous Page IconTo Previous Page
To Previous Page IconTo Previous Page
Loading...
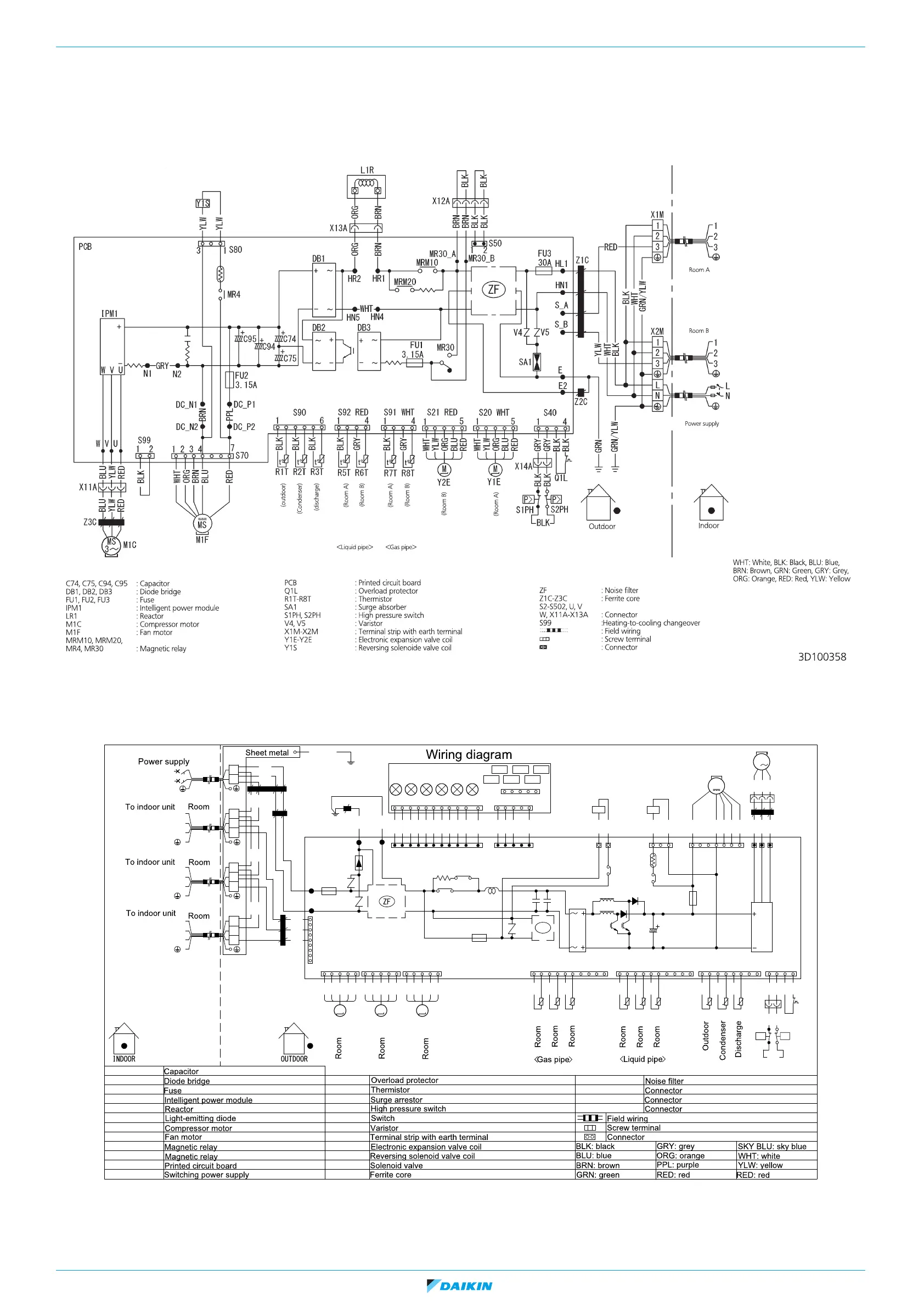
ESIE16-02K | Part 5. Appendix 5.2. Wiring diagram
RA R32 Split & multi split M-Series
31/05/21 | Version 1.1 Page 105
5.2.2. Outdoor unit
5.2.2.1. 2MXM50M9
Figure 5-13: Wiring diagram - outdoor unit 2MXM50M9
5.2.2.2. 3MXM68M, 3MXM68N(9)
Figure 5-14: Wiring diagram - outdoor unit 3MXM68M, 3MXM68N(9)
L
X1M
X2M
N
1
2
3
1
2
3
X3M
1
2
3
1
2
3
X4M
1
2
3
1
2
3
B
A
L
N
BRN
BLU
BLK
WHT
BLK
WHT
BLK
WHT
Z1C
Z5C
Z4C
RED
YLW
BLU
1
S
9
E1
E2
HL1
HN1
FU3
30A
SA1
V2
V3
FU1
3.15A
MRM20
MRM10
V401
PS
DB1
FU2
3.15A
DC+
DC-
W V U
IPM1
MR4
C110
RED
BLU
BRN
ORG
WHT
YLW
YLW
4 3 2 1
7
S70
1 3
S80
Y1S
M1F
MS
W V U
BLU
YLW
RED
Z3C
GRN
Z2C
GRN
( )
BLK
BLK
BLK
1
8
S90
R1T R2T R3T
1
10
S93
R4T R5T R6T
1
10
S92
R9T R10T R11T
BLK
GRY
BRN
BLK
GRY
YLW
Y2S
MR308
RED
AL2
RED
AL1
C
PCB1
FU1,FU2,FU3
DB1
C110,C54,C56
IPM1
M1C
LED1-5,LEDA
M1F
MRM10,MRM20
MR4,MR30,MR308
PCB1,PCB2
PS
Q1L
SA1
S1PH,S2PH
SW1-SW6
V2,V3,V401
X1M-X4M
Y1E-Y3E
Y1S
Z1C-Z5C
ZF
S,S2-S502
U,V,W
X11A,X13A,AL1,AL2
R1T-R11T
( )
( )
( A)
( B)
( C)
Y3E
Y2E
Y1E
15
1
5
15
M
WHT
YLW
ORG
BLU
RED
M
WHT
YLW
ORG
BLU
RED
M
WHT
YLW
ORG
BLU
RED
Y2S
S20 WHT
S21 RED
S22 BLU
( A)
( B)
( C)
S40
4
1
GRY
GRY
S2PH
BLK
BLK
Q1L
X13A
BLK
BLK
P>
S1PH
P>
BLK
3
MS
BLU
YLW
RED
M1C
X11A
GRN/YLW
111
S501
15
S502
A 1 2 3 4 5
S2
SW1 SW3 SW5
SW2 SW4 SW6
LED
PCB2
BLK
BRN
RED
ORG
YLW
GRN
BLU
PPL
GRY
WHT
SKY
BLU
BLK
BRN
RED
YLW
111
S201
15
S202
L803,L804
C54
C56
L803
L804
( A)
( B)
( C)
3D106248A

Table of Contents

Related product manuals